Торговая площадь 500 м²
12 000 000 ₽
24 000 ₽ за м²
1 из 2
этажи
500,00 м²площадь
есть
отдельный вход
Характеристики
Наличие мебели
нет
Ремонт
требует ремонта
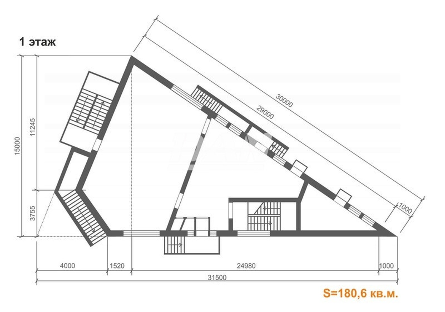
Продаётся коммерческое, отдельно стоящее здание на въезде в коттеджный поселок (п. Рощино). <br> <br>Высокий автомобильный трафик в любое время, так как рассматриваемый объект, расположен на въезде в жилую зону малоэтажной застройки с плотностью населения 1 472 человека. Суммарное ко-во зарегистрированных домохозяйств в зоне охвата составляет 566 объектов. <br> <br>В радиусе 5-минутной автомобильной доступности отсутствует конкуренция среди коммерческих зданий на собственном земельном участке. <br> <br>Характеристики объекта: ОСЗ. По документам – объект незавершенного строительства. <br>Расположение: п. Рощино. <br>Этажность здания: 2 этажей <br>Общая площадь: 495,6 кв.м. <br>Цоколь: 145,7 кв.м. (h=3,30 м.) <br>1-й этаж: 180,6 кв.м. (h=3,30 м.) <br>2-й этаж: 169,3 кв.м. (h=3,30 м.) <br>Коммуникации: <br>Вода – скважина, <br>Водоотведение – септик, <br>Отопление – газ. <br>Элект. мощность: 35 кВт. <br>Кол-во входов/выходов: <br>1 этаж - 3 шт., <br>Цоколь – 3 шт. <br>Парковка: Собственная (5 машино-места). <br>Земельный участок: Собственность <br>Ост. общественного транспорта: Ост. Пос. Светлый (10 м.). <br> <br>Предполагаемый вид использования: <br>• Гостиница <br>• Общепит <br>• Пансионат <br>• Торговое помещение <br> <br>Инфраструктура в радиусе 5-минутной автомобильной доступности: <br>• Государственные и муниципальные учреждения (5 объектов) <br>• Учебные заведения (5 объектов) <br>• Мед. учреждения (6 объектов), <br>• Объекты детской тематики (5 объектов), <br>• Кредитно-финансовые учреждения и страхования (13 объектов) <br>• Представители продуктового ритейла и федеральных сетей (22 объекта) <br>• Объекты по продаже товаров народного потребления (12 объектов) <br>• Объекты по оказанию бытовых услуг (13 объектов) <br>• Объекты автомобильной тематики (14 объектов) <br>• Объекты общественного питания (2 объектов) <br> <br>В радиусе 5-минутной авто. доступности расположены многоквартирные жилые дома со средней этажностью 4-5 этажей, а так же районы малоэтажной застройки. Суммарное кол-во домохозяйств 2 634 объектов. Плотность населения в данном жилом районе 6 797 чел. <br> <br>Звоните! <br>Арт. 13537248