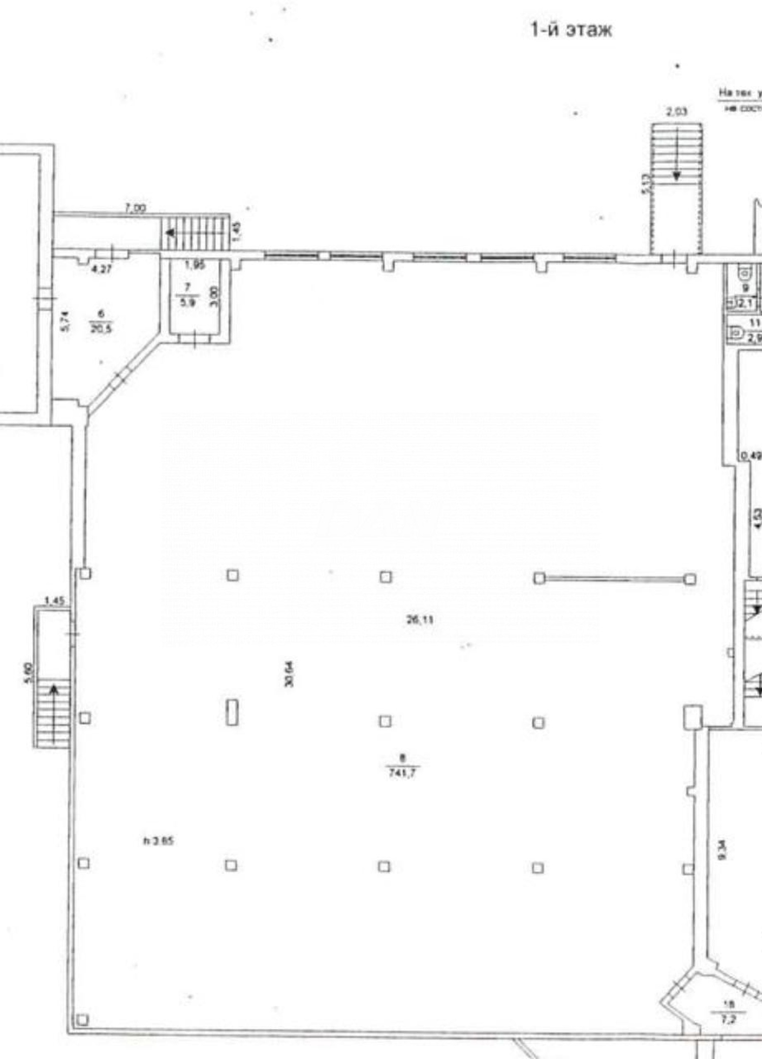
Помещение свободного назначения 820 м²
984 000 ₽
1 200 ₽ за м²
Челябинск, Курчатова ул., 25
1 из 1
этаж
820,00 м²площадь
нет
отдельный вход
Арендный бизнес































