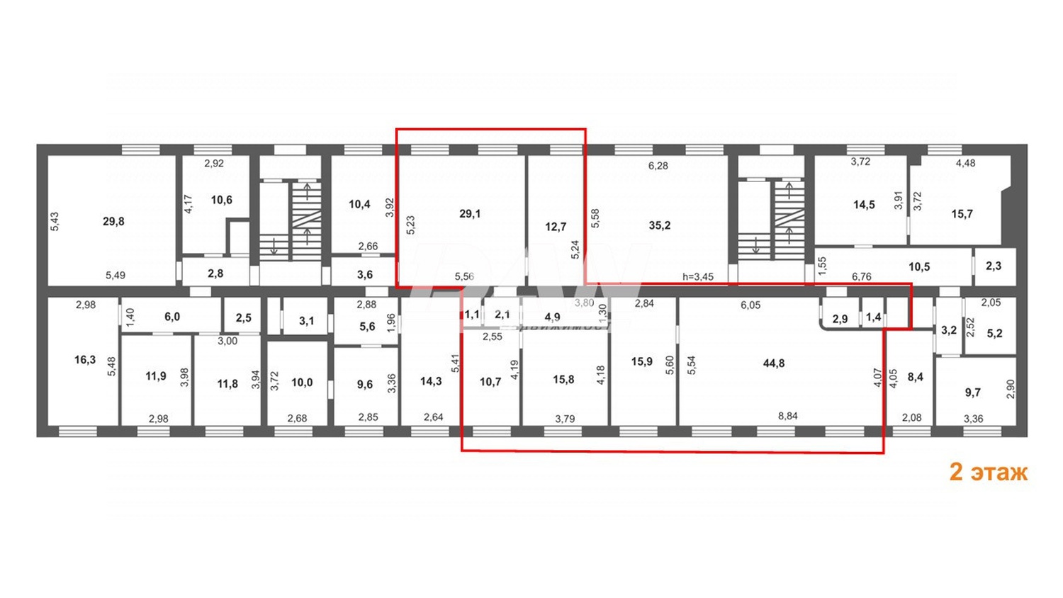
Офис 100 м²
35 000 ₽
350 ₽ за м²
Челябинск, Кудрявцева ул., 19а
2 из 2
этажи
100,00 м²площадь
есть
отдельный вход
Похожие объекты
38 168 ₽
Офис, 54,1м²
3 / 5 этаж
Челябинск, Красноармейская ул., 55
30 000 ₽
Торговое помещение, 50м²
1 / 1 этаж
Челябинск, Первой Пятилетки ул., 13
36 000 ₽
Помещение свободного назначения, 36м²
1 / 9 этаж
Челябинск, Жукова ул., 53
35 000 ₽
Склад, 116м²
1 / 1 этаж
Челябинск, Первой Пятилетки ул., 13
39 695 ₽
Офис, 46,4м²
1 / 5 этаж
Челябинск, Красноармейская ул., 55
Арендный бизнес

















