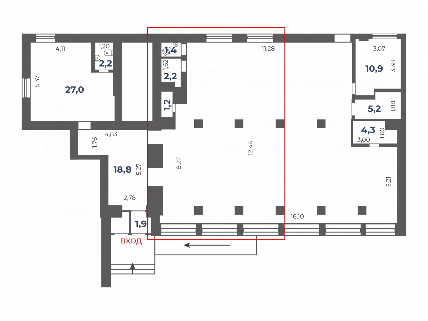
Торговое помещение 110 м²
187 000 ₽
1 700 ₽ за м²
Челябинск, Кирова ул., 2
1 из 5
этажей
110,00 м²площадь
есть
отдельный вход
Похожие объекты
175 000 ₽
Торговое помещение, 175м²
1 / 3 этаж
Челябинск, Молодогвардейцев ул., 2
210 000 ₽
Помещение свободного назначения, 600м²
2 / 3 этаж
Челябинск, Троицкий тракт, 11Ак1
176 500 ₽
Помещение свободного назначения, 353м²
1 / 3 этаж
Челябинск, Первой Пятилетки ул., 45
180 000 ₽
Земли коммерческого назначения, 3000м²
Челябинск, Троицкий тракт, 60в
200 000 ₽
Торговое помещение, 120м²
1 / 19 этаж
Челябинск, Братьев Кашириных ул., 124
180 000 ₽
Помещение свободного назначения, 682м²
2 / 2 этаж
Челябинск, Копейское ш., 48, литера ж
200 000 ₽
Торговое помещение, 400м²
1 / 1 этаж
Челябинск, Кузнецова ул., 47
165 000 ₽
Офис, 468м²
1 / 2 этаж
Челябинск, Кудрявцева ул., 19а
Арендный бизнес















