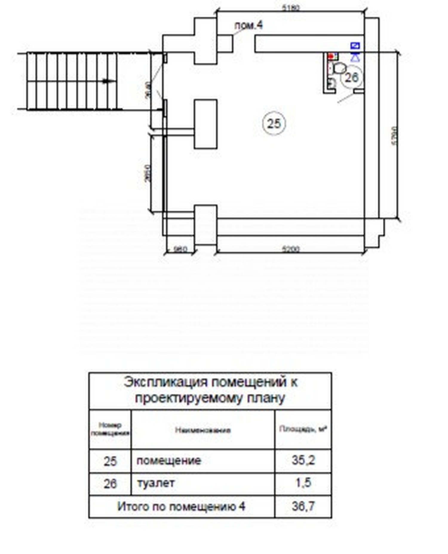
Помещение свободного назначения 36 м²
36 000 ₽
1 000 ₽ за м²
Челябинск, Жукова ул., 53
1 из 9
этажей
36,00 м²площадь
есть
отдельный вход
Арендный бизнес









