Офис 15 м²
4 из 5
этажей
15,00 м²площадь
нет
отдельный вход
Характеристики
Наличие мебели
нет
Ремонт
евро
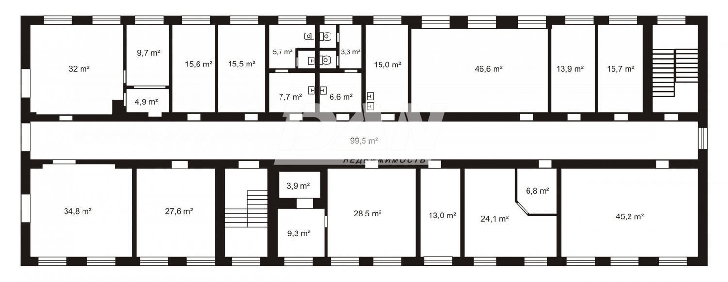
Предлагаем в аренду нежилые помещение кабинетной планировки. Отличное техническое состояние помещений, качественный ремонт, кабинетная планировка, большая вместительная парковка позволяют успешно использовать объект для представительства компании, объекта образовательных услуг, объекта кредитно-финансовой сферы и страхования, научно-проектные организации, объекта сферы услуг, интернет-магазина. <br> <br>Возможность арендовать весь этаж для комфортной работы, оборудованный помещением под столовую или помещение для приема пищи сотрудниками, а так же комнаты отдыха. Стоимость аренды с НДС и арендную плату включены расходы на отопление. <br> <br>Технические характеристики объекта: <br>● Общая площадь: 1030 кв.м кабинеты в плане <br>● Этаж: 4 и 5 этаж <br>● Этажность: 5 этажей <br>● Высота потолков: от 3,1 м <br>● Вход: два общих входа по лестничному маршу <br>● Коммуникации: водоснабжение, водоотведение, отопление – центральные <br>● Туалет общего пользования на этаж <br>● Возможность организации столовой или места приема пищи <br>● Кондиционеры: есть в части помещений <br>● Пожарная сигнализация: есть <br>● Пост охраны: есть <br>● Режим доступа в здание - свободный <br> <br>Транспортная развязка в расположении объекта, обеспечивает доступ всем видам автомобильного транспорта: <br>+ 3 мин. пр-т Ленина (центральная магистраль города) <br>+ 10 мин. до автодорога Меридиан (прямой въезд/выезд в сторону Республики Казахстан, г.Троицк, г.Уфа, г.Екатеринбург, г.Курган) <br>+ 10 мин. до Центра <br> <br>Пешая доступность (400 м) ост. Челябинский компрессорный завод (5 маршрутов). <br>Свободная большая парковка возле здания. <br> <br>Преимущества объекта: <br>+ Качественный ремонт и отличное техническое состояние объекта <br>+ Близость офиса от объектов инфраструктуры <br>+ Большая вместительная парковка для сотрудников и посетителей объекта <br>+ Близость остановок общественного транспорта <br>+ В стоимость аренды включены расходы на отопление <br>+ Оборудован системами пожарной сигнализации и кондиционерами <br>+ Объект имеет оптимальную высоту потолков <br>+ Объект имеет достаточное остекление для естественного освещения. <br> <br>Звоните! Рады ответить на интересующие вопросы. <br>Арт. 34353030