Арендный бизнес 2557 м²
160 000 000 ₽
62 573 ₽ за м²
1 из 1
этаж
2557,00 м²площадь
нет
отдельный вход
Характеристики
Наличие мебели
нет
Ремонт
требует ремонта
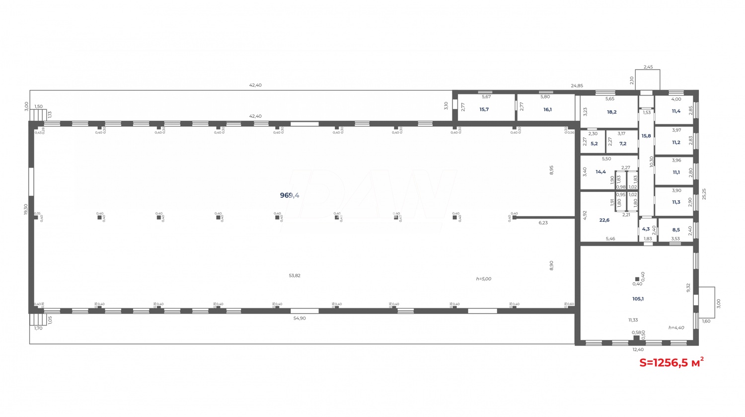
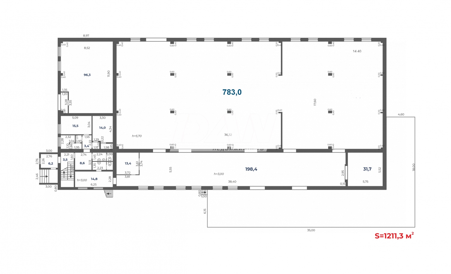
Продается имущественный комплекс, подходящий для размещения предприятия по механической обработке металла, литейному производству отливок из стали, чугуна, нержавеющих и жаропрочных сталей, а так же по производству нестандартного оборудования. <br> <br>Предприятие разместилось на собственном земельном участке в двух отдельно стоящих собственных зданиях общей площадью 2 557 кв.м., обеспеченные всеми необходимыми коммуникациями, в том числе доступной эл-й мощностью 1,350 Мвт, газом до 40 куб.\час., крановым оборудование, подходящие в дальнейшем для размещения любой производственно-складской деятельности. <br> <br>Расположение: Чел. Обл., г. Копейск, ул. Мира, д.4. <br>Земельный участок: S=86 сот. <br>Категория земель: земли населенных пунктов <br>Виды разрешенного использования: для эксплуатации зданий <br>Права собственности: ООО (НДС не учитывается) <br> <br><u>Строение 1: Цех металлообработки</u> <br>Права собственности: ООО (НДС не учитывается) <br>Общая площадь: 1301,1 кв.м. <br>Высота потолка: 5,7 м. (в цехе) <br>Пол: бетон <br>Кол-во ворот: 2 шт. (3*4 м.) <br>Грузоподъемное оборудование: Кран-балка до 3 т. <br>Коммуникации: <ul><li data-list="bullet"><span class="ql-ui" contenteditable="false"></span>Отопление – газ до 40 куб.\час. </li><li data-list="bullet"><span class="ql-ui" contenteditable="false"></span>Вода\Водоотведение – Центральные </li><li data-list="bullet"><span class="ql-ui" contenteditable="false"></span>Эл-во: 1,350 Мтв (на оба здания). Стоимость электроэнергии: 6,5 руб./кВт без НДС.</li></ul> <br><u>Помещение подходить для размещения следующего оборудования:</u><ul><li data-list="bullet"><span class="ql-ui" contenteditable="false"></span>Фрезерные, токарные, сверлильный станки. </li><li data-list="bullet"><span class="ql-ui" contenteditable="false"></span>Сварной и заготовительный участки включающий в себя автоматы отрезные ленточнопильные позволяющие отрезать заготовку диаметром до 600 мм.</li></ul> <br> <br><u>Строение 2: Литейный цех</u> <br>Права собственности: ООО (НДС не учитывается) <br>Общая площадь: 1256,5 кв.м. <br>Высота потолка: 5,0 м. (в цехе) <br>Пол: бетон <br>Кол-во ворот: 2 шт. (3*4 м.) <br>Грузоподъемное оборудование: Кран-балка до 5 т. Присутствует техническая возможность установки дополнительной кран-балки в другой пролет. <br>Коммуникации: <ul><li data-list="bullet"><span class="ql-ui" contenteditable="false"></span>Отопление – газ до 40 куб.\час. </li><li data-list="bullet"><span class="ql-ui" contenteditable="false"></span>Вода\Водоотведение – Центральные </li><li data-list="bullet"><span class="ql-ui" contenteditable="false"></span>Эл-во: 1,350 Мтв (на оба здания). Стоимость электроэнергии: 6,5 руб./кВт без НДС.</li></ul> <br><u>Помещение подходить для размещения следующего оборудования:</u><ul><li data-list="bullet"><span class="ql-ui" contenteditable="false"></span>Технологии: XТС (хoлодно-твepдeющиe cмеcи) и ЛГМ (литье по газифицируемым моделям).</li><li data-list="bullet"><span class="ql-ui" contenteditable="false"></span>Двух литейных комплексов: 500 и 1000 кг. (для максимального веса отливки: до 700 кг.)</li><li data-list="bullet"><span class="ql-ui" contenteditable="false"></span>Печей, формовочных линии, смесителей, очистных установок и др.</li></ul> <br> <br>Важно отметить, в радиусе 15-минутной автомобильной доступности плотность населения составляет 41 833 человек. <br> <br><em>Транспортная развязка в расположении объекта, обеспечивает всем выдам автомобильного транспорта, удобные подъездные пути во все районы города Копейск, а так же до крупных транспортных развязок по следующим направлениям:</em> <br><em>+8 км. до центра г. Копейск</em> <br><em>+ 11 км. до объездной г. Челябинска (обход города) прямой въезд/выезд в сторону г.Курган, г.Екатеринбург, г.Троицк, г.Уфа, Республики Казахстан,</em> <br><em>+ 14 км. до г. Челябинска</em> <br><em> </em> <br><em>Звоните! Будем рады ответит на ваши вопросы! </em> <br>Арт. 95649355