Производственное помещение 1301 м²
1 500 000 ₽
1 152 ₽ за м²
1 из 1
этаж
1301,00 м²площадь
нет
отдельный вход
Характеристики
Наличие мебели
нет
Ремонт
косметический
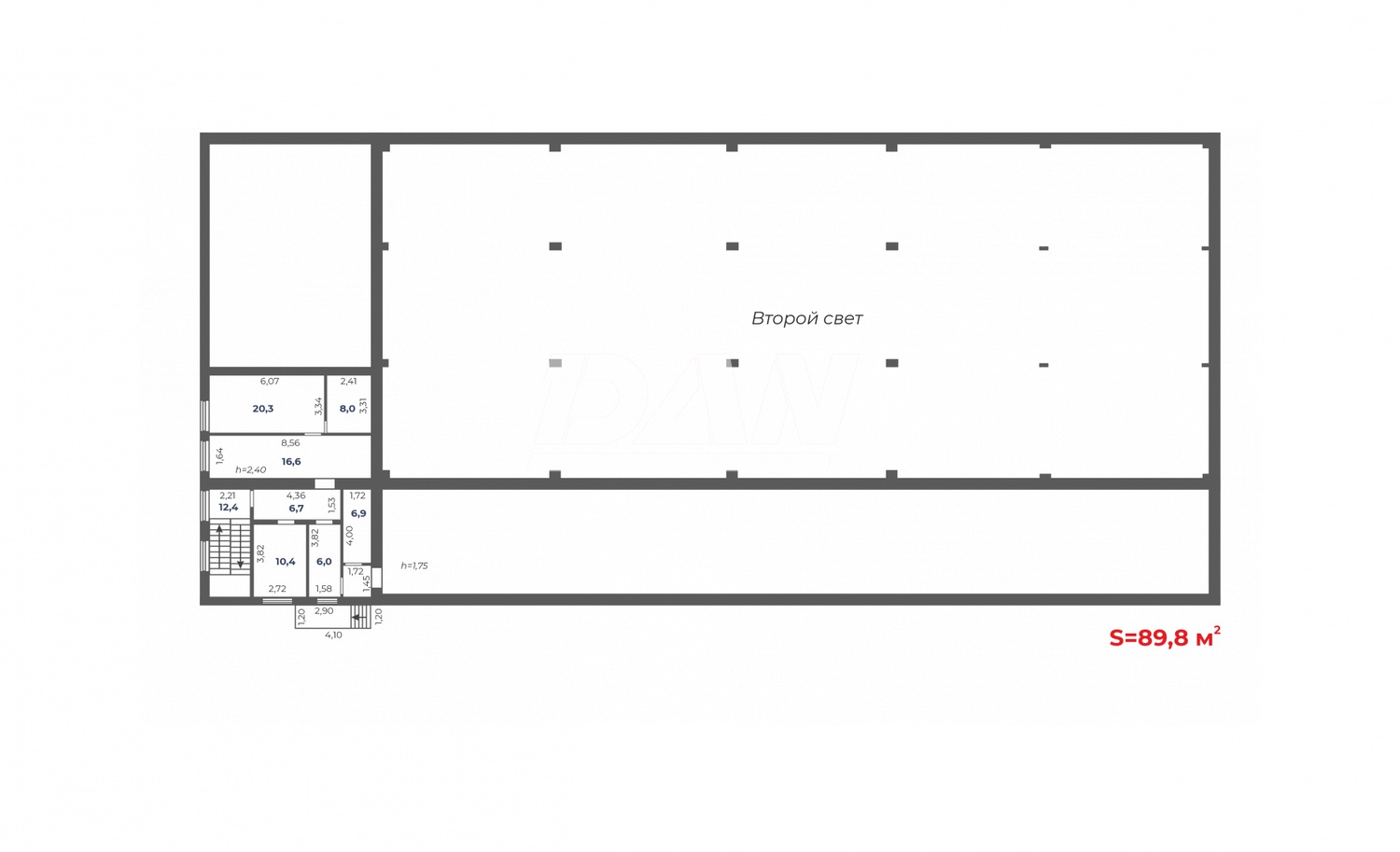
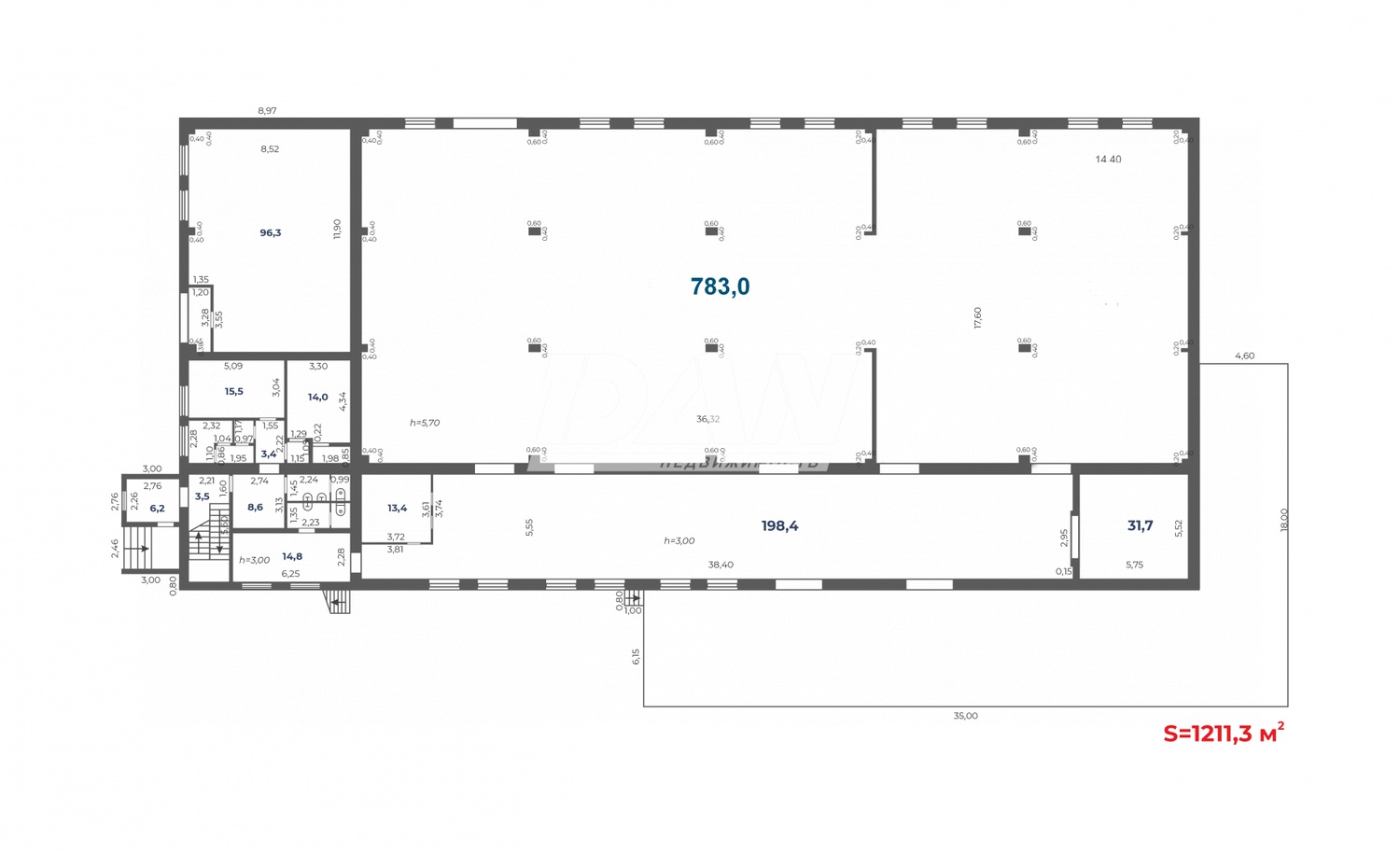
Сдается в долгосрочную аренду действующее предприятие «Механический завод» укомплектованный необходимым штатом сотрудников, полным комплектом оборудование по механической обработке металла, а так же по производству нестандартного оборудования. Объект подходит как для расширения уже действующего производителя изделий из металла с растущим объемом продаж готовой продукции, так и для запуска нового собственного предприятия по обработке металла исходя из развития нового направления бизнеса. <br> <br>Расположение: Чел. Обл., г. Копейск, ул. Мира, д.4. <br>Земельный участок: S=86 сот. <br>Категория земель: земли населенных пунктов <br>Виды разрешенного использования: для эксплуатации зданий <br> <br>Строение: Цех металлообработки <br>Права собственности: ООО (НДС не учитывается) <br>Общая площадь: 1301,1 кв.м. <br>Высота потолка: 5,7 м. (в цехе) <br>Пол: бетон <br>Кол-во ворот: 2 шт. (3*4 м.) <br>Грузоподъемное оборудование: Кран-балка до 3 т. <br>Коммуникации: <br>Отопление – газ до 40 куб.\час. <br>Вода\Водоотведение – Центральные <br>Эл-во: 150 кВт (на всю территорию присоединенная мощность 1,350 Мтв.). <br>Стоимость электроэнергии: 6,5 руб./кВт без НДС. <br> <br><u>Основные характеристики:</u><ul><li>Фрезерные, токарные, сверлильный станки. </li><li>Сварной и заготовительный участки включающий в себя автоматы отрезные ленточнопильные позволяющие отрезать заготовку диаметром до 600 мм.</li><li>Полный комплект оборудования.</li></ul> <br> <br>Важно отметить, в радиусе 15-минутной автомобильной доступности плотность населения составляет 41 833 человек. <br> <br><em>Транспортная развязка в расположении объекта, обеспечивает всем выдам автомобильного транспорта, удобные подъездные пути во все районы города Копейск, а так же до крупных транспортных развязок по следующим направлениям:</em> <br><em>+8 км. до центра г. Копейск</em> <br><em>+ 11 км. до объездной г. Челябинска (обход города) прямой въезд/выезд в сторону г.Курган, г.Екатеринбург, г.Троицк, г.Уфа, Республики Казахстан,</em> <br><em>+ 14 км. до г. Челябинска</em> <br><em> </em> <br><em>Звоните! Будем рады ответит на ваши вопросы! </em> <br>Арт. 96202978