Склад 1200 м²
1 из 1
этаж
1200,00 м²площадь
нет
отдельный вход
Характеристики
Наличие мебели
нет
Ремонт
косметический
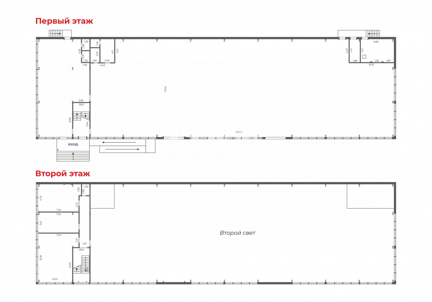
Предлагаем рассмотреть инвестиционный проект по завершению строительства складского здания 1200 кв.м. за счет средств арендатора, при этом сумма вложений будет засчитана в стоимость будущей аренды. На данный момент проводится монтаж стен и кровли, который завершиться до 01.12.2025 г. <br> <br>Характеристики земельного участка: <br>Вид разрешенного использования: для эксплуатации производственной базы <br>Право собственности: Физ. лицо. <br>Общая площадь здания: 1 225 кв.м. <br>Складская площадь: 920 кв.м. <br>Высота потолка: 6 м. <br>Кол-во ворот: 2 шт. (3*4 м.) <br>Коммуникации: <br>Вода/водоотведение - автономные <br>Эл-во - 350 кВт (на всю территорию) <br>Отопление - Газ. <br> <br><u>Коммерческие условия:</u><ul><li data-list="bullet"><span class="ql-ui" contenteditable="false"></span>Долгосрочный договор аренды, с учетом погашения задолженности по завершению строительства объекта.</li></ul> <br> <br><u>Предполагаемый вид использования:</u><ul><li data-list="bullet"><span class="ql-ui" contenteditable="false"></span>Склад готовой продукции</li><li data-list="bullet"><span class="ql-ui" contenteditable="false"></span>Производство (чистое)</li><li data-list="bullet"><span class="ql-ui" contenteditable="false"></span>Шоу-рум</li></ul> <br> <br>Объект расположен в 500 м. от ул. Копейское шоссе и автодороги <br>Меридиан по асфальтированной дороге ул. Енисейская, в 1-минутной транспортной <br>доступности от ТРК областного масштаба «АЛМАЗ». <br> <br>Транспортная развязка в расположении объекта, обеспечивает любому <br>автомобильному транспорту, удобные подъездные пути: <br>+1 мин. до ул. Копейское шоссе <br>+3 мин. автодорога Меридиан (прямой выезд в сторону Республики <br>Казахстан, г.Троицк, г.Уфа, г.Екатеринбург, г.Курган) <br>+7 мин. до Центра <br> <br>Звоните! Будем рады ответить на ваши вопросы. <br>Арт. 120809335