Производственное помещение 2150 м²
190 000 000 ₽
88 372 ₽ за м²
1 из 1
этаж
2150,00 м²площадь
есть
отдельный вход
Характеристики
Наличие мебели
нет
Ремонт
требует ремонта
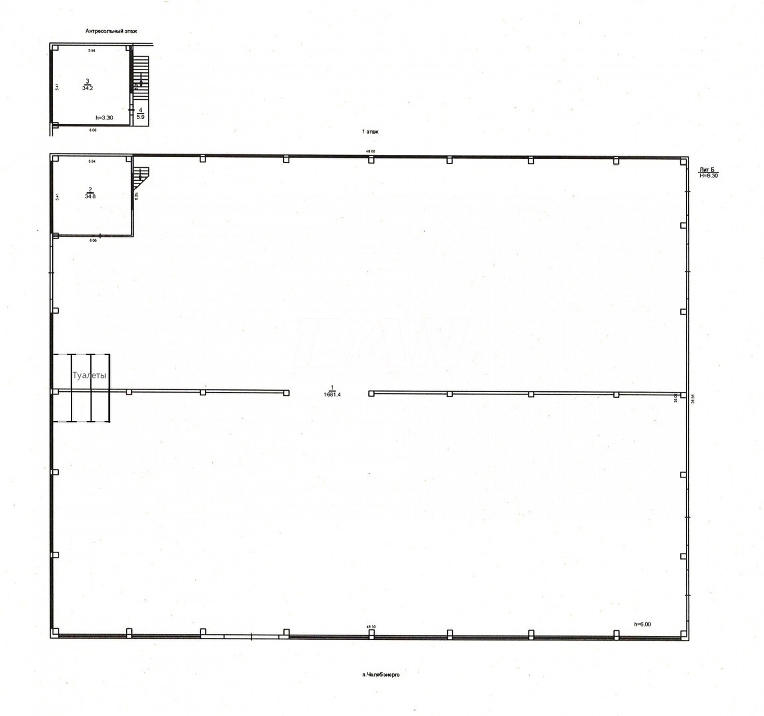
Предлагаем приобрести производственно-складской комплекс включающий в себя следующие объекты имущества: теплое производственно-складское здание общей площадью 1820 кв.м. со смотровыми ямами и подъемниками для обслуживания в том числе для крупнотоннажных автомобилей, здание АБК для персонала площадью 135 кв.м, офисное здание с новым качественным ремонтом площадью 180 кв.м., здание КПП площадью 25 кв.м, земельный участок, используемый как охраняемая стоянка для крупнотоннажного автотранспорта площадью 2,1 Га <br>Комплекс располагается рядом с густонаселенными районами города в близи остановки общественного транспорта. Технические характеристики базы и превосходная локации позволяют использовать объект для размещения: автосервис и станцию технического обслуживания автотранспорта, различные виды производства, склад готовой продукции, транспортно-логистический комплекс, распределительный центр, сборочный цех. <br> <br>Здание расположено на собственной охраняемой закрытой территория с круглосуточным доступом 24/7. Земельный участок благоустроен: освещается, полностью огорожен, с круглосуточным пунктом пропуска и охраны и находится под видеонаблюдением. <br> <br>Характеристики объекта: <br>Производственно-складское здание <br>S=1820 кв.м (пролет 36,3м длина 48,5 м) <br>Ворота подъемные секционные с электроприводом 4,2 *4,0 м - 6 шт. <br>Высота потолка: в максимальной точке высота 6 м до ферм <br>Помещения для персонала 50 м2 <br>Помещение газовой котельной 30м2 <br>Сан.узлы: 4 шт <br> <br>Здание АБК <br>S=135 кв.м <br>Вход - 3 шт. <br>Высота потолка: 3м <br>Ремонт: косметический <br> <br>Офисное здание <br>S=180 кв.м <br>Вход - 2 шт. <br>Высота потолка: 3м <br>Ремонт: новый качественный евроремонт <br>Сан.узлы: 2шт. <br> <br>Земельный участок площадью 2,25 Га <br>Благоустройство: щебеночное покрытие по всей площади <br>Оборудовано под стоянку крупнотоннажного транспорта и спецтехники <br>Освещение всей территории стоянки <br>Территория: Огороженная и под видеонаблюдением <br>Круглосуточная охрана <br>Подъездные пути: асфальтированная дорога <br> <br>Коммуникации: <br>Водоснабжение - локальное автономное (скважина). Горячая вода. <br>Водоотведение - септик <br>Отопление - газовая котельная с гибкой и экономичной системой тепловентиляторов Вулкан <br>Электрическая мощность объекта 220 В + 380 В мощностью 350 кВт <br>Территория: Огороженная/асфальтированная <br>Круглосуточная вневедомственная охрана (полиция) <br>Подъездные пути: асфальтированная дорога <br>Парковка оборудованная для стоянки крупнотоннажного транспорта <br> <br>Объект расположен в пешей доступности от остановки общественного транспорта ост. Челябэнерго. <br>Транспортная развязка в расположении объекта, обеспечивает всем выдам автомобильного транспорта доступ: <br>+ 5 мин. до Свердловский тракт (прямой въезд/выезд на федеральную трассу М5 в сторону г. Екатеринбург) <br>+ 5 мин. до Новгородский тракт (прямой въезд/выезд на федеральную трассу М5 в сторону г. Уфа) <br>+5 мин до объездной дороги г. Челябинск <br>+20 мин. до Центра <br> <br>Преимущества объекта: <br>+ оборудован для обслуживания автотранспорта, в том числе крупнотоннажного <br>+ Круглосуточный доступ <br>+ Наличие помещений для персонала, сан.узлов <br>+ Большая площадка для автотранспорта и открытого хранения <br>+ Экономичная и гибкая система отопления от собственной газовой котельной <br>+ Удобные подъездные пути <br>+ Охраняемая территория с собственным постом вневедомственной охраны (полиция) <br>+ Объект подключен ко всем коммуникациям <br>+ Универсальное назначение помещений <br> <br>По всем интересующим вопросам - звоните. <br>Арт. 125555478