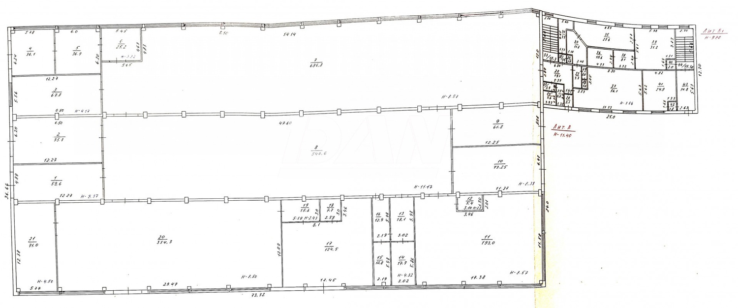
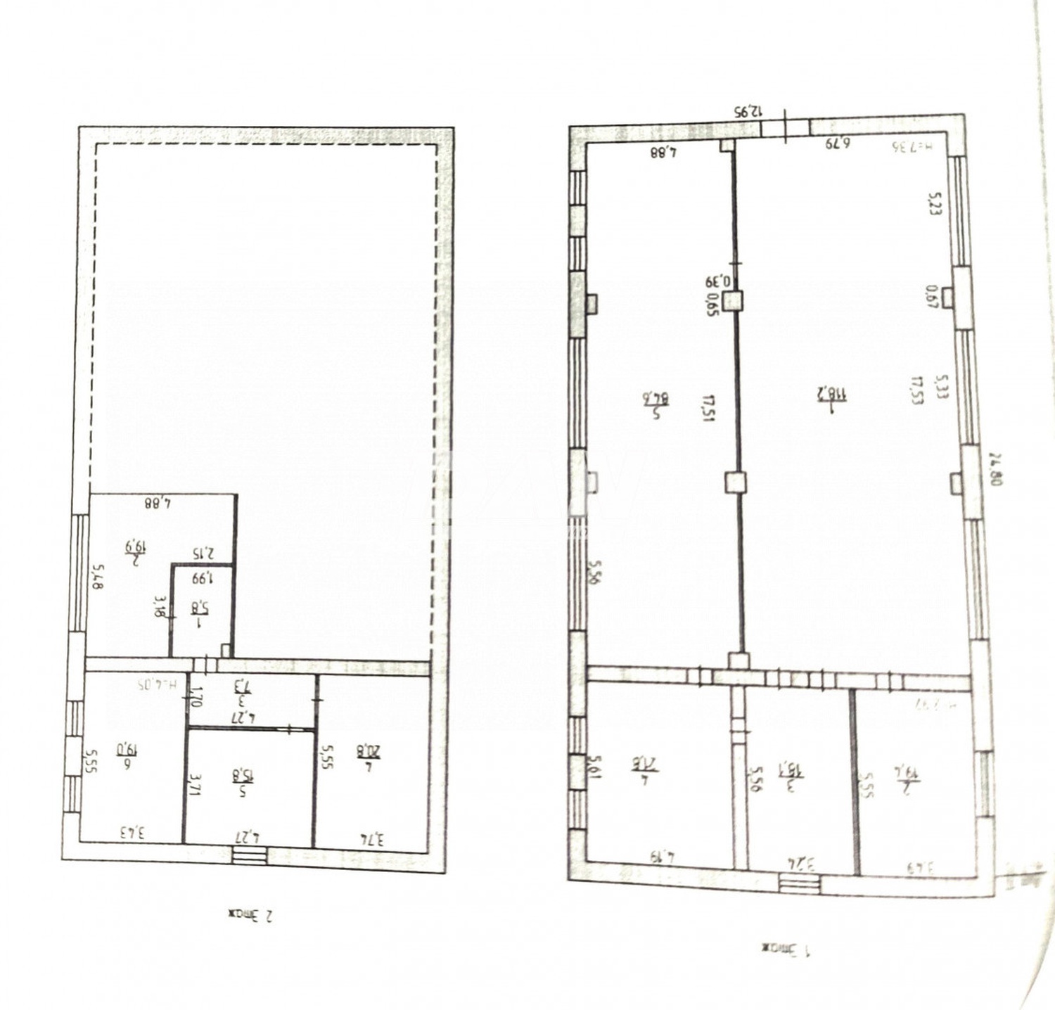
Производственное помещение 8720,6 м²
40 000 000 ₽
4 586 ₽ за м²
Варламово, СХТ пер., 2
1 из 3
этажи
8720,60 м²площадь
есть
отдельный вход
Арендный бизнес






















