Торговая площадь 344,9 м²
23 750 000 ₽
68 860 ₽ за м²
Троицк, им Ю.А.Гагарина ул., 14
1 из 2
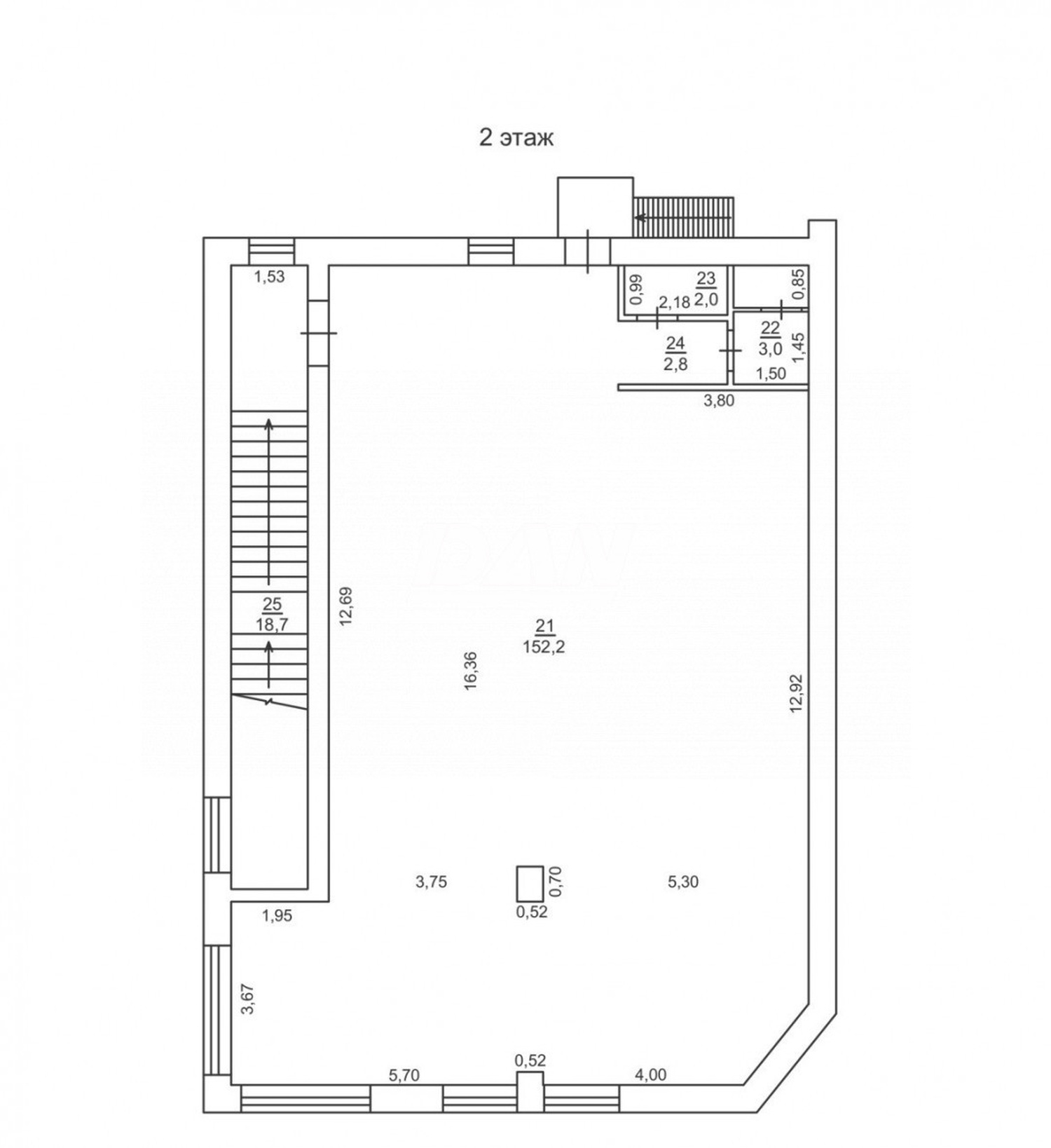
этажи
344,90 м²площадь
есть
отдельный вход
Характеристики
Наличие мебели
нет
Ремонт
евро
Продается отдельно стоящее 2-х этажное здание на первой линии с отдельным входом на ул. И.И. Неплюева. Объект является готовым успешным арендным бизнесом: Площади объекта сданы в аренду многолетним постоянным арендаторам. Уникальная локация с высокий трафиком потенциальных клиентов и покупателей, близость остановок общественного транспорта, круглосуточный доступ создали прекрасные условия для использования объекта в качестве: магазинов, различных видов объектов сферы услуг, а также в качестве офиса. Объект расположен на собственном земельном участке площадью 308 кв.м. <br> <br>Характеристика объекта: <br>● Общая площадь - 370,8 кв.м. <br>1 этаж площадью 160,1 кв.м <br>2 этаж площадью 184,8 кв.м <br>● Отдельная входные группы на улицу И.И. Неплюева. из каждого этажа и лестничных маршей на 2 этаж <br>● Отопление - централизованное <br>● Водоснабжение и водоотведение - центральное <br>● Электрическая мощность - 50 кВт, <br>● Охранно-пожарная сигнализация <br>● Ремонт: качественный евроремонт. <br>● Система вентиляции - вытяжная <br>● Сан. узелы на каждом этаже <br> <br>Объект расположен на первой линии ул. И.И. Неплюева в 20 м от остановки общественного транспорта ост. Проспект Неплюева (5 маршрутов) общественного транспорта во все районы города. <br> <br>Транспортная развязка в расположении объекта, обеспечивает доступ всем видам автомобильного + 1 мин. до ул. Гагарина (центральная улица города) <br>+ 5 мин до ЖД Вокзал г.Троицка <br>+ 5 мин. прямой въезд/выезд на федеральную трассу М 36 (прямой въезд/выезд в сторону Республики Казахстан, г.Челябинск, г.Уфа, г.Екатеринбург, г.Курган) <br>+ 3 мин. до Центра г. Троицк. <br> <br>Инфраструктура в районе 5-минутной пешеходной доступности: <br>* Сетевые супермаркеты Магнит и Пятерочка <br>* Аптека <br>* Продуктовые магазины <br>* Магазины одежды, обуви <br>* Объекты бытовых услуг <br>* Объекты медицинской тематики <br>* Объекты сферы отдыха и развлечений <br>* Научные и учебные заведения <br> <br>Преимущества объекта: <br>+ Площади объекта сданы в аренду и генерируют арендный поток <br>+ Качественный ремонт и отличное техническое состояние объекта <br>+ Близость объекта от объектов инфраструктуры <br>+ Большой пешеходный трафик улицы Неплюева <br>+ Близость остановок общественного транспорта <br>+ Земельный участок, на котором расположено здание в собственности <br>+ Установлены охранные, пожарные системы и система вытяжной вентиляции <br> <br>Звоните! Ответим на интересующие вопросы. <br>Арт. 99942224