Склад 4744,7 м²
1 из 1
этаж
4744,70 м²площадь
есть
отдельный вход
Характеристики
Наличие мебели
нет
Ремонт
требует ремонта
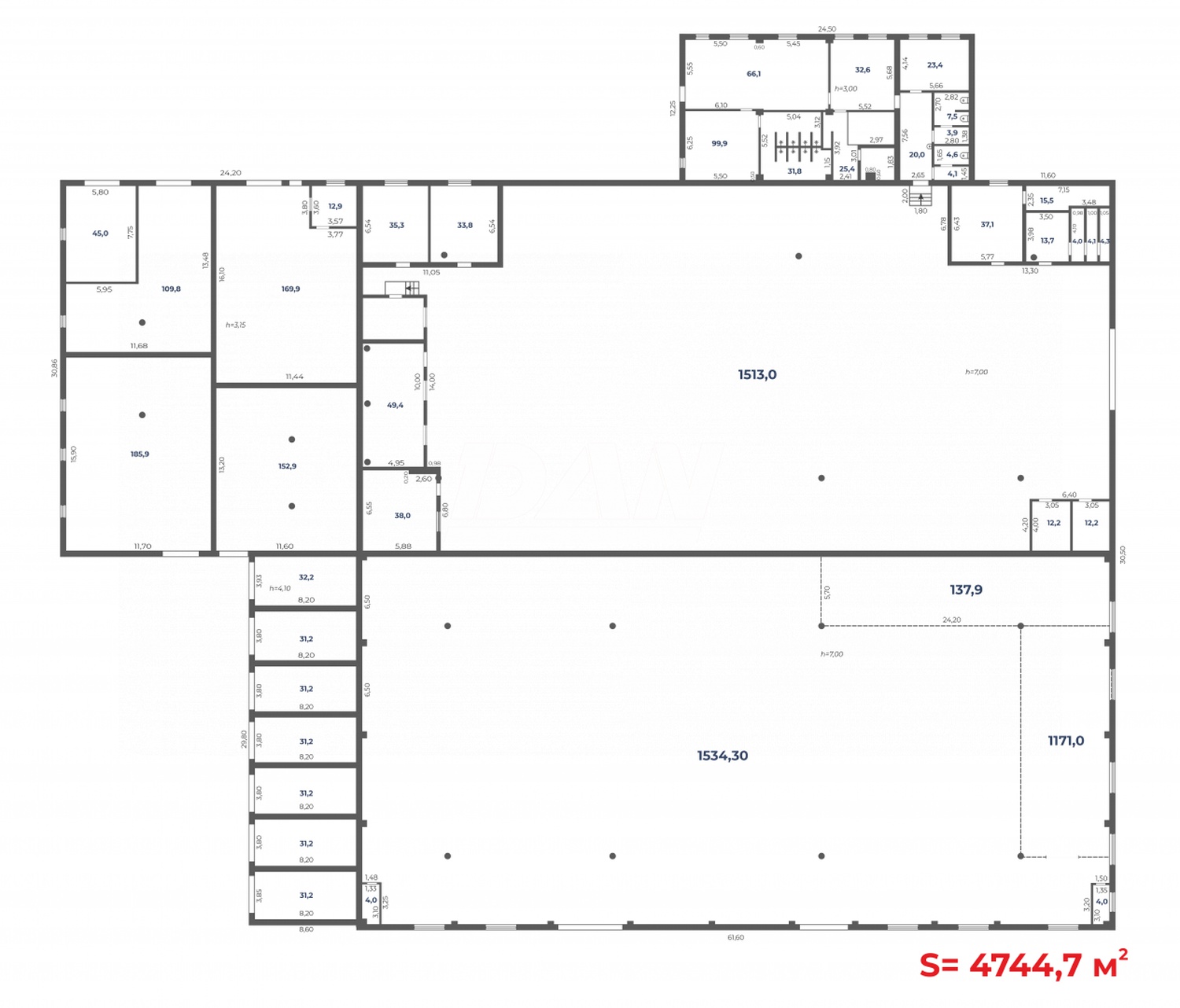
Предлагаем взять в аренду складской комплекс общей площадью 4744,7 кв.м., расположенный на собственном земельном участке общей площадью 11182 кв.м. Значительные электрические мощности, удобное логистическое расположение дают возможность разместить склад готовой продукции, транспортно-логистический комплекс, распределительный центр. <br> <br>Объект расположен в минутной пешей доступности 700м до остановки общественного транспорта "Кирзавод". <br> <br>Транспортная развязка в расположении объекта, обеспечивает всем выдам автомобильного транспорта доступ: <br>+ 1 мин. до федеральной автомобильной дороги А310 на г. Челябинск (а так же прямая трасса в сторону р. Казахстан через город Троицк) <br>+ 3 мин. до Центра г. Еманжилинск <br>+ 30 мин. до г. Челябинск <br>+ 20 мин до объездной дороги г. Челябинск <br>+ 30 мин до федеральной трассы М5 <br> <br>Характеристики объекта: <br>Электрическая мощность объекта 220 В + 380 В мощностью 1150 кВт <br>Склад <br>S=4744,7 кв.м <br>Ворота распашные 4,2 *4,0 м - 3 шт., <br>Ворота распашные 4,0 *3,0 м - 4 шт., <br>Ворота распашные 3,0*3,0 м - 8 шт. <br>Отопление в АБК площадью 300 кв.м <br>Высота потолка: 7,3 м. <br>Помещения для персонала АБК S=300 кв.м <br>Водоснабжение и водоотведение локальные (скважина, септик) <br> <br>Земельный участок площадью 11182 кв.м в собственности. <br>Ограждение - забор из кипича и ЖБ плит <br>Благоустройство: часть площади земельного участка имеет дороги и площадку (отсев ,щебень) <br> <br>Преимущества объекта: <br>+ Большие электрические мощности <br>+ Выгодное логистическое расположение <br>+ Наличие трудовых ресурсов <br>+ Большие складские площади <br>+ АБК позволяет использовать персонал на вахте <br>+ Удобные подъездные пути <br> <br>По всем интересующим вопросам - звоните. <br>Арт. 96945559