Офис 964,8 м²
9 из 12
этажей
964,80 м²площадь
нет
отдельный вход
Характеристики
Наличие мебели
нет
Ремонт
косметический
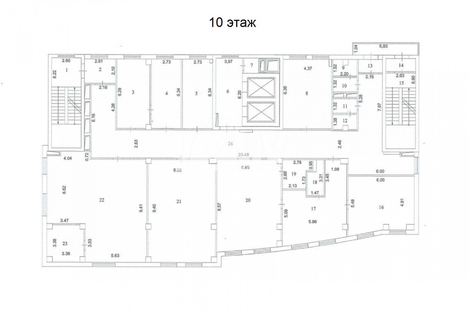
Сдаются в аренду офисные площади в бизнес-центре "Партнер", расположенном по адресу: ул. Елькина, д. 112. Два этажа с кабинетной планировкой находятся в новом офисном комплексе. Удобная парковка, лифты, свежий ремонт, кондиционеры, вентиляция, сети СКС (серверная на два этажа), достаточное количество естественного света. <br> <br>Здание офисного центра расположено на первой линии, улицы Елькина. Транспортная доступность. Трехполосные автодороги улицы Доватора и улицы Курчатова (Овчинникова), обеспечивают большую пропускную способность автотранспорта в сторону ЖД Вокзала (расстояние 3 мин.) и обратно. Расстояние до центра города – 5 минут. Рядом с объектом ведется строительство Метротрама, в шаговой доступности будет расположена станция ул. Овчинникова. <br> <br>0,6 км до Управления Росреестра по Челябинской области <br>1,2 км до ЖД и Авто Вокзала <br>2,1 км до пл. Революции <br> <br>Помещения предлагаются в чистовой отделке: потолок Армстронг, стены: под покраску, пол: коридор кафель, кабинеты - линолеум, санузел кафель. В здании работает столовая для сотрудников, Есть дополнительный кабинет в аренду на первом этаже с окном приёма для граждан, площадью 16.5 м². <br> <br>Преимущества объекта: <br>Коммерческое здание <br>Этаж: 9, 10 <br>Площадь этажа: 482,4 кв.м. <br>Лифт: 2 <br>Кабинетная планировка: 20 офисов (от 16 до 60 кв. м.) <br>Сан. узел: на этаже <br>Естественное освещение <br>Приточно-вытяжная вентиляция: есть <br>Кондиционирование: есть <br>Удобные подъездные пути <br>Транспортная доступность из любого района города <br> <br>Парковка: гостевая перед зданием, на заднем дворе вместительность - 140 машиномест <br>Безопасность: круглосуточная охрана объекта, пропускная система, пожарно-охранная сигнализация <br> <br>Коммунальные платежи, оплачиваются дополнительно: отопление и э/э, усредненная сумма по году за один этаж составит около 20 тыс.руб. в месяц. <br> <br>Характеристики здания: <br>Этажность: 12 этажей <br>Общая площадь объекта: 5700 кв.м. <br>Материал стен и перекрытий: ж/б плита, кирпич <br>Электрическая мощность: от 15 кВт с возможностью увеличения <br>Высота потолков: 3 м. <br>Входов: 3 <br>Коммуникации: центральные <br> <br>В радиусе 500 м. расположены: <br>Объекты продуктового ритейла (более 10) <br>7 Объектов общественного питания <br>10 объектов медицинской тематики <br>Объекты бытовых услуг (более 50) <br>Строительные магазины и товары для дома (более 70) <br>Объекты автомобильной тематики (более 40) <br> <br>Заинтересовались объектом? Звоните, с удовольствием отвечу на ваши вопросы! <br>Арт. 120521797