Помещение свободного назначения 641,3 м²
128 260 000 ₽
200 000 ₽ за м²
1 из 2
этажи
641,30 м²площадь
есть
отдельный вход
Характеристики
Наличие мебели
нет
Ремонт
требует ремонта
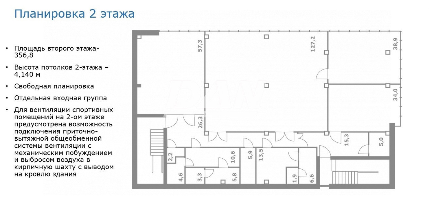
Продается отдельно стоящее здание расположенное на первой линии и центральной площади в новом современном ЖК премиум класса Голос L-town в 5-ти минутах от Челябинска. Панорамные окна с большой площадью остекления , высокие потолки, свободная планировка широкие рекламные возможности. <br>Универсальная планировка и вводная мощность 200кВт подходит под любые виды деятельности: супермаркет, фитнесс-клубкафе, ресторан, бутик, барбершоп, интернет магазин, сервисный центр, клиентский офис и др. <br> <br>Помещение расположено на въезде в ЖК. Рядом по проекту будет построена школа с остановкой общественного транспорта, игровая площадка, кино под открытым небом, соседский клуб. Парковка напротив помещения. На фасаде предусмотрено место под рекламную вывеску. Дополнительный вход со двора. <br> <br>Стоимость здания с земельным участком 128 260 000руб (в том числе НДС 18 336 666,67руб.) <br> <br>Технические характеристики помещения: <br>Площадь: 641,3 кв.м. <br>Этажность: 2 <br>Высота потолков: 4,2 м. <br>Эл. мощность: 200 кВт <br>Парковка <br>Естественное освещение: Панорамные окна <br>Коммуникации: Центральные <br> <br>Инфраструктура в ЖК Голос L-town: <br>Современная архитектура <br>Благоустроенная территория <br>Безбарьерная среда <br>14 домов разной этажности от 3 до 8 <br>4000 жителей <br>Школа, два детских сада, <br>По соседству расположен город спутник "L-town" <br>Планируемое количество населения в застройке города L-Town 31 000 чел. <br> <br> <br> <br>Звоните отвечу на дополнительные вопросы! <br>Арт. 75259667