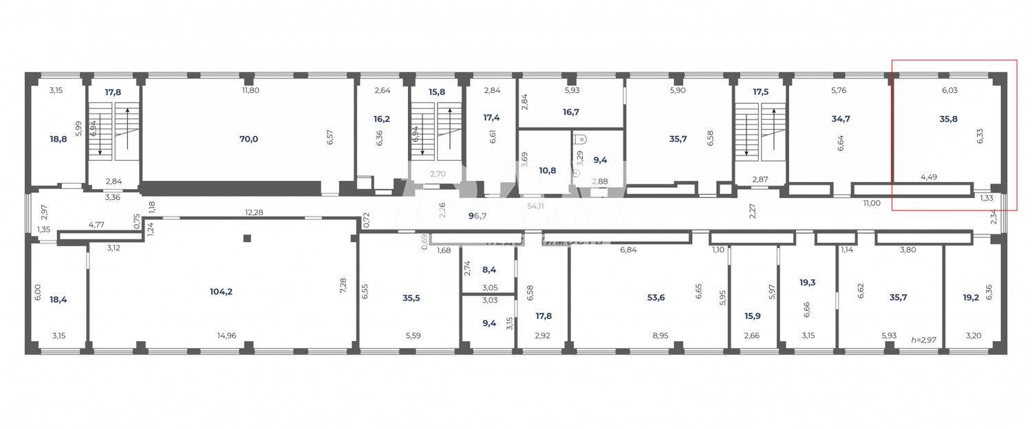
Офис 35,8 м²
4 из 4
этажи
35,80 м²площадь
нет
отдельный вход
Характеристики
Наличие мебели
нет
Ремонт
евро
Сдаются в аренду офисные помещения расположенные в Ленинском районе по направлению в сторону г. Копейск, подходящие для размещения представительства компании. <br> <br>Тип объекта: Офисные помещения <br>Расположение: 4-й этаж административного здания <br>Вход на этаже: общий <br>Доступ: по пропускам <br>Общая площадь: 35,8 кв.м. <br>Планировка: кабинет разделен перегородкой <br>Коммуникации: центральные <br>Состояние: с ремонтом <br><u>Коммунальные расходы:</u><ul><li data-list="bullet"><span class="ql-ui" contenteditable="false"></span>Тепло – включено в стоимость</li><li data-list="bullet"><span class="ql-ui" contenteditable="false"></span>Вода/водоотведение, эл-во – по счетчику</li><li data-list="bullet"><span class="ql-ui" contenteditable="false"></span>Клининг – возможно по отдельному договору.</li></ul> <br>Остановка общественного транспорта: 300 м. ост. Рыбокомбинат <br> <br><u>Важно отметить следующие преимущества:</u><ul><li data-list="bullet"><span class="ql-ui" contenteditable="false"></span>Собственная парковка до 100 машино мест</li><li data-list="bullet"><span class="ql-ui" contenteditable="false"></span>В здании расположена столовая</li><li data-list="bullet"><span class="ql-ui" contenteditable="false"></span>Возможно предоставление офисных помещений суммарно до 1000 кв.м. на 2-3-4 этажах. </li></ul> <br><em> </em> <br><em>Транспортная развязка в расположении объекта, обеспечивает всем выдам автомобильного транспорта, удобные подъездные пути во все районы города, в том числе до ул. Копейское шоссе (300 м.) с прямым въездом/выездом в сторону г. Екатеринбург, г. Курган, г. Уфа, г. Троицк, Республики Казахстан.</em> <br><em> </em> <br><em>Звоните! Будем рады ответит на ваши вопросы! </em> <br>Арт. 111663121