Производственное помещение 2557 м²
100 000 000 ₽
39 108 ₽ за м²
1 из 1
этаж
2557,00 м²площадь
нет
отдельный вход
Характеристики
Наличие мебели
нет
Ремонт
требует ремонта
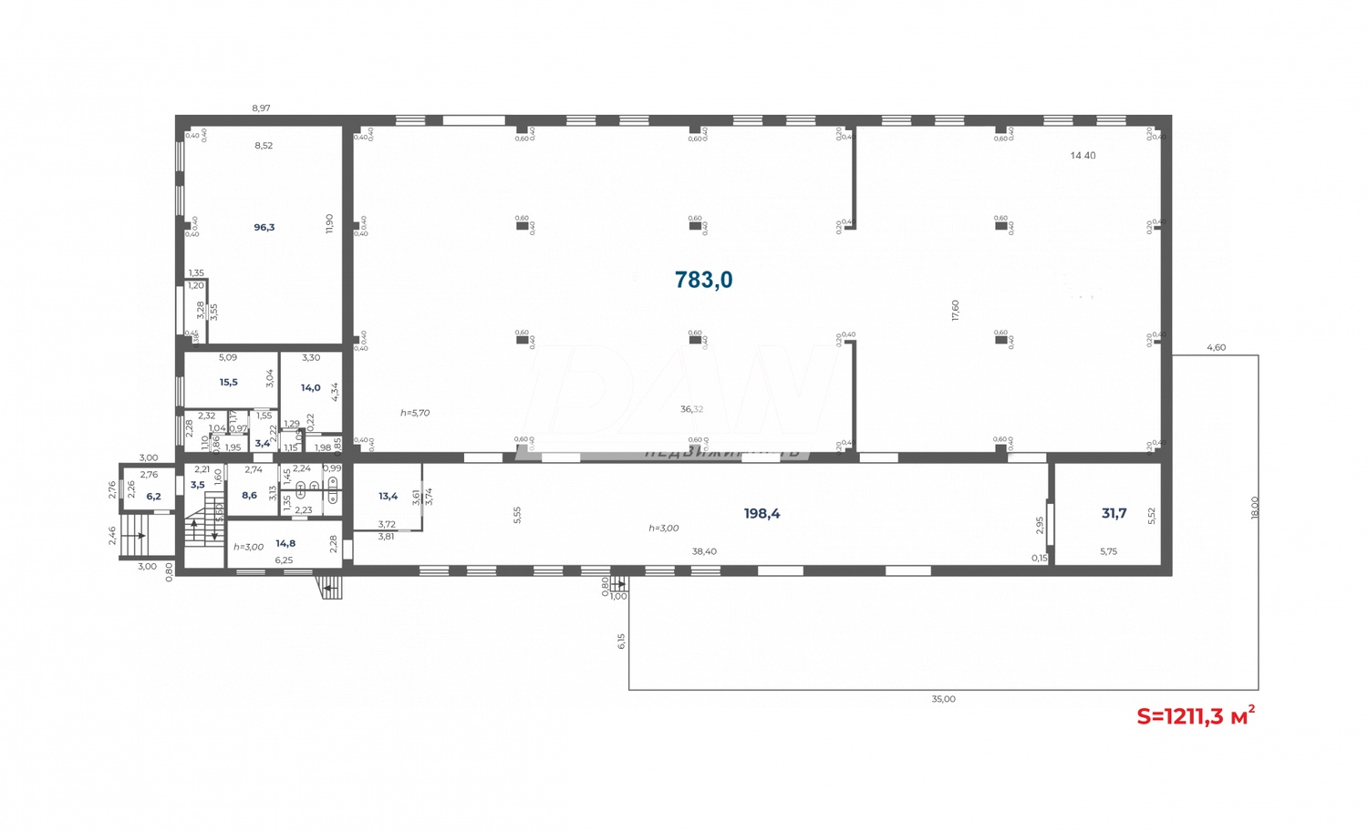
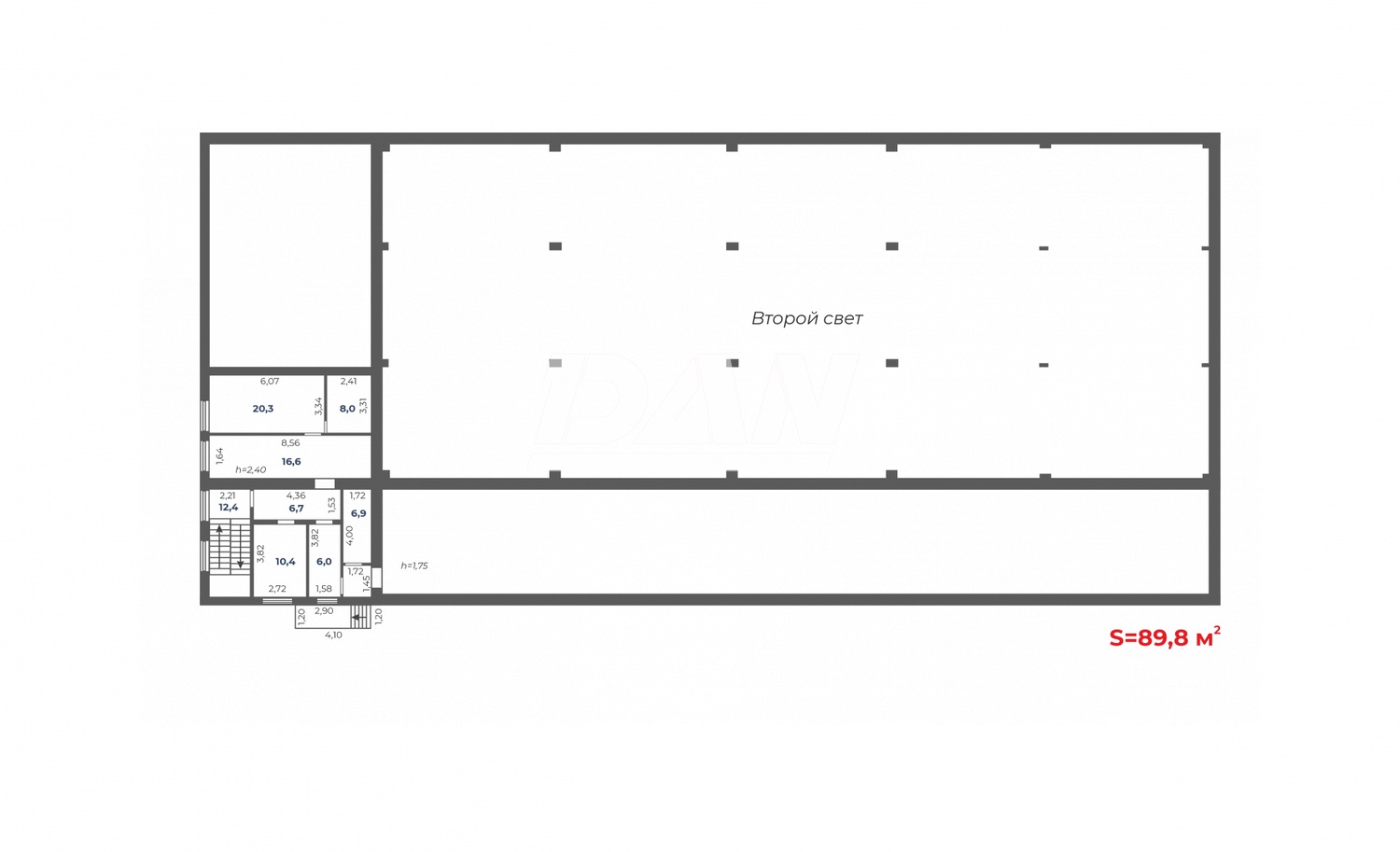
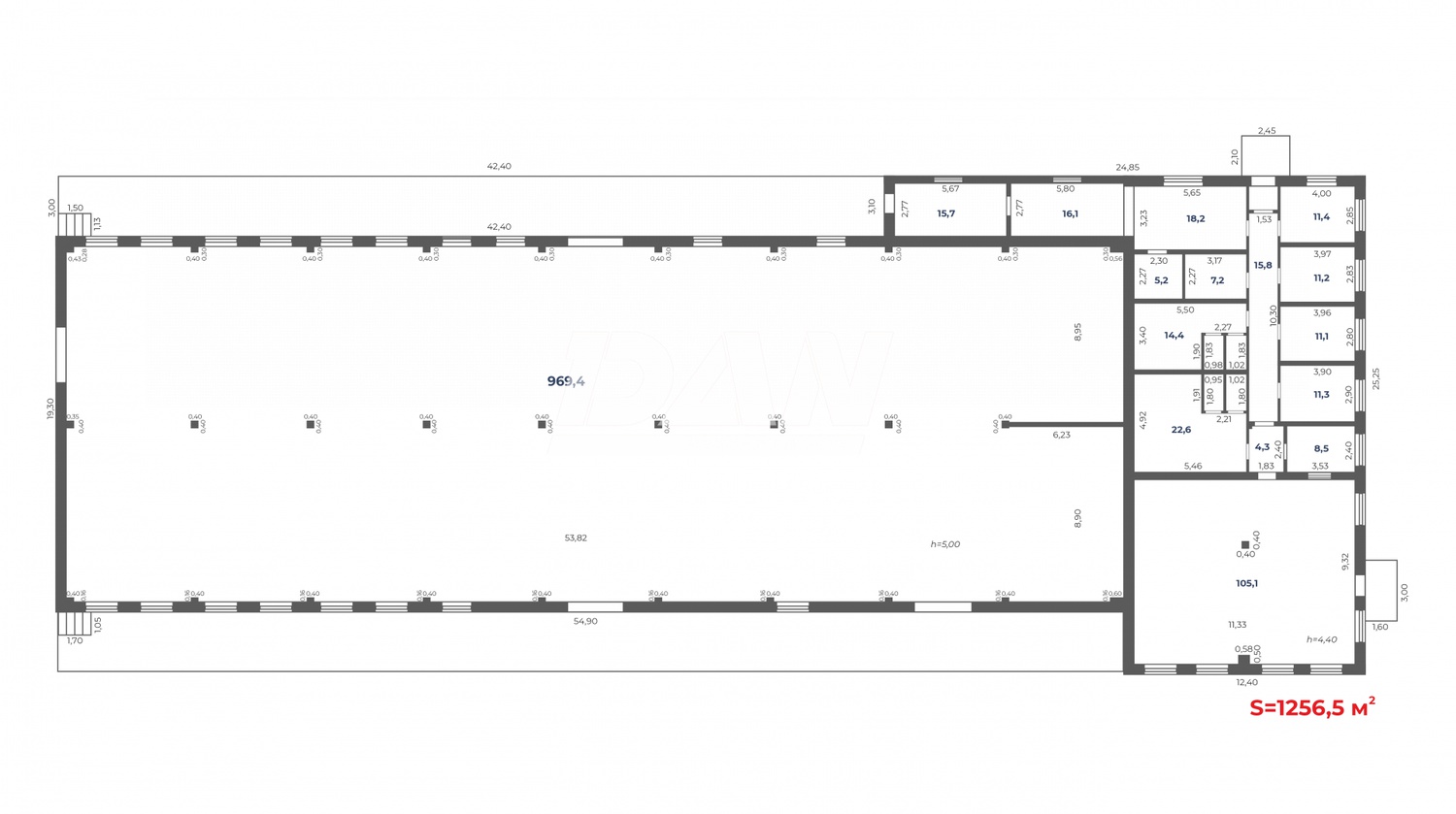
Продаются производственные здание общей площадью 2 557 кв.м., расположенные на собственном земельном участке, обеспеченные всеми необходимыми коммуникациями, в том числе доступной эл-й мощностью 1,350 Мвт, газом, крановым оборудование, подходящие для размещения любой производственно-складской деятельности. <br>В данный момент объект используется в качестве цеха механической обработки металла и литейного производства. Объект может быть продан вместе с оборудованием за 160 млн. руб. <br> <br>Расположение: Чел. Обл., г. Копейск, ул. Мира, д.4. <br>Земельный участок: S=86 сот. <br>Категория земель: земли населенных пунктов <br>Виды разрешенного использования: для эксплуатации зданий <br>Права собственности: ООО (НДС не учитывается) <br> <br>Строение 1: Цех металлообработки <br>Права собственности: ООО (НДС не учитывается) <br>Общая площадь: 1301,1 кв.м. <br>Высота потолка: 5,7 м. (в цехе) <br>Пол: бетон <br>Кол-во ворот: 2 шт. (3*4 м.) <br>Грузоподъемное оборудование: Кран-балка до 3 т. (1 шт.) <br><u>Коммуникации: </u><ul><li>Отопление – газ до 40 куб.\час. </li><li>Вода\Водоотведение – Центральные </li><li>Эл-во: 1,350 Мтв (на оба здания).</li></ul> <br> <br>Строение 2: Литейный цех <br>Права собственности: ООО (НДС не учитывается) <br>Общая площадь: 1256,5 кв.м. <br>Высота потолка: 5,0 м. (в цехе) <br>Пол: бетон <br>Кол-во ворот: 2 шт. (3*4 м.) <br>Грузоподъемное оборудование: Кран-балка до 5 т. (1 шт.) Присутствует техническая возможность установки дополнительной кран-балки в другой пролет. <br><u>Коммуникации: </u><ul><li>Отопление – газ до 40 куб.\час. </li><li>Вода\Водоотведение – Центральные </li><li>Эл-во: 1,350 Мтв (на оба здания).</li></ul> <br> <br><u>Важно отметить следующие преимущества объекта:</u><ol><li>Возможно, продажа объекта в качестве готового производства с оборудование за 160 млн. руб. (НДС не учитывается). </li><li>В радиусе 15-минутной автомобильной доступности плотность населения составляет 41 833 человек</li></ol> <br> <br><em>Транспортная развязка в расположении объекта, обеспечивает всем выдам автомобильного транспорта, удобные подъездные пути во все районы города Копейск, а так же до крупных транспортных развязок по следующим направлениям:</em> <br><em>+8 км. до центра г. Копейск</em> <br><em>+ 11 км. до объездной г. Челябинска (обход города) прямой въезд/выезд в сторону г.Курган, г.Екатеринбург, г.Троицк, г.Уфа, Республики Казахстан,</em> <br><em>+ 14 км. до г. Челябинска</em> <br><em> </em> <br><em>Звоните! Будем рады ответит на ваши вопросы! </em> <br>Арт. 94759381