Склад 1781 м²
80 000 000 ₽
44 918 ₽ за м²
1 из 1
этаж
1781,00 м²площадь
есть
отдельный вход
Характеристики
Наличие мебели
нет
Ремонт
требует ремонта
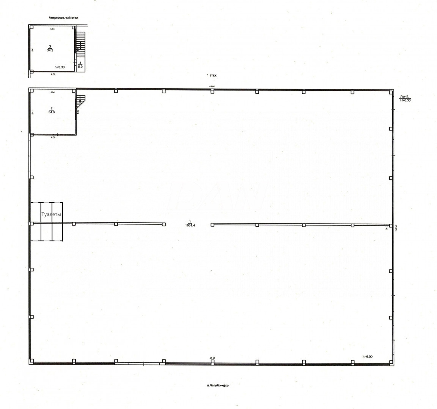
Предлагаем приобрести теплое производственно-складское здание общей площадью 1781 кв.м. со смотровыми ямами и подъемниками для обслуживания в том числе для крупнотоннажных автомобилей. Здание располагается рядом с густонаселенными районами города в близи остановки общественного транспорта. Технические характеристики базы и превосходная локации позволяют использовать объект для размещения: автосервис и станцию технического обслуживания автотранспорта, различные виды производства, склад готовой продукции, транспортно-логистический комплекс, распределительный центр, сборочный цех. <br> <br>Здание расположено на собственной охраняемой закрытой территория с круглосуточным доступом 24/7. <br> <br>Характеристики объекта: <br>Производственно-складское здание <br>S=1781 кв.м (пролет 36,0 м длина 48,0 м) <br>Ворота подъемные секционные с электроприводом 4,2 *4,0 м - 6 шт. <br>Высота потолка: в максимальной точке высота 6 м до ферм <br>Помещения для персонала 50 м2 <br>Помещение газовой котельной 30м2 <br>Сан.узлы: 4 шт <br>Офисные помещения площадью 35 м2 <br> <br>Коммуникации: <br>Водоснабжение - локальное автономное (скважина). Горячая вода. <br>Водоотведение - септик <br>Отопление - газовая котельная с гибкой и экономичной системой тепловентиляторов Вулкан <br>Электрическая мощность объекта 220 В + 380 В мощностью 250 кВт <br>Территория: Огороженная/асфальтированная <br>Круглосуточная вневедомственная охрана (полиция) <br>Подъездные пути: асфальтированная дорога <br>Парковка оборудованная для стоянки крупнотоннажного транспорта <br> <br>Объект расположен в пешей доступности от остановки общественного транспорта ост. Челябэнерго. <br>Транспортная развязка в расположении объекта, обеспечивает всем выдам автомобильного транспорта доступ: <br>+ 5 мин. до Свердловский тракт (прямой въезд/выезд на федеральную трассу М5 в сторону г. Екатеринбург) <br>+ 5 мин. до Новгородский тракт (прямой въезд/выезд на федеральную трассу М5 в сторону г. Уфа) <br>+5 мин до объездной дороги г. Челябинск <br>+20 мин. до Центра <br> <br>Преимущества объекта: <br>+ Оборудован для обслуживания автотранспорта, в том числе крупнотоннажного <br>+ Круглосуточный доступ <br>+ Наличие помещений для персонала, сан.узлов <br>+ Экономичная и гибкая система отопления от собственной газовой котельной <br>+ Удобные подъездные пути <br>+ Объект подключен ко всем коммуникациям <br>+ Универсальное назначение помещений <br> <br>По всем интересующим вопросам - звоните. <br>Арт. 126889461