Производственное помещение 1256 м²
1 из 1
этаж
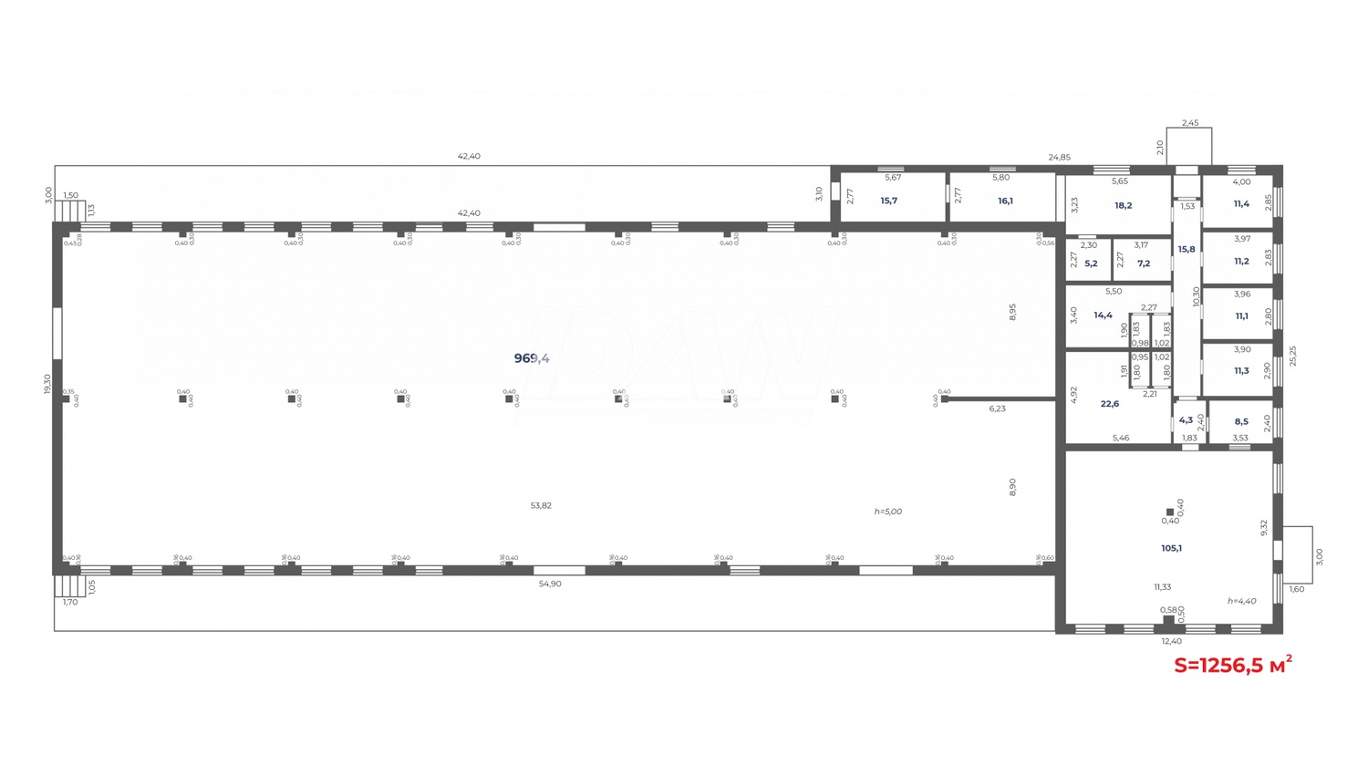
1256,00 м²площадь
нет
отдельный вход
Характеристики
Наличие мебели
нет
Ремонт
косметический
Сдается в долгосрочную аренду действующее предприятие «Литейное производство» укомплектованное необходимым штатом сотрудников, полным комплектом оборудование по литейному производству отливок из стали, чугуна, нержавеющих и жаропрочных сталей, а так же по производству нестандартного оборудования. Объект подходит как для расширения уже действующего предприятия с растущим объемом продаж готовой продукции, так и для запуска нового собственного предприятия исходя из развития нового направления бизнеса. <br> <br>Расположение: Чел. Обл., г. Копейск, ул. Мира, д.4. <br>Земельный участок: S=86 сот. <br>Категория земель: земли населенных пунктов <br>Виды разрешенного использования: для эксплуатации зданий <br>Права собственности: ООО (НДС не учитывается) <br> <br>Строение: Литейный цех <br>Права собственности: ООО (НДС не учитывается) <br>Общая площадь: 1256,5 кв.м. <br>Высота потолка: 5,0 м. (в цехе) <br>Пол: бетон <br>Кол-во ворот: 2 шт. (3*4 м.) <br>Грузоподъемное оборудование: Кран-балка до 5 т. Присутствует техническая возможность установки дополнительной кран-балки в другой пролет. <br>Коммуникации: <br>Отопление – газ до 40 куб.\час. <br>Вода\Водоотведение – Центральные <br>Эл-во: 1,200 Мтв. <br>Стоимость электроэнергии: 6,5 руб./кВт без НДС. <br> <br><u>Основные характеристики:</u><ul><li>Технологии: XТС (хoлодно-твepдeющиe cмеcи) и ЛГМ (литье по газифицируемым моделям).</li><li>Два литейных комплекса: 500 и 1000 кг.</li><li>Максимальный вес отливки: до 700 кг.</li><li>Оборудование: печи, формовочные линии, смесители, очистные установки и др.</li></ul> <br> <br>Важно отметить, в радиусе 15-минутной автомобильной доступности плотность населения составляет 41 833 человек. <br> <br><em>Транспортная развязка в расположении объекта, обеспечивает всем выдам автомобильного транспорта, удобные подъездные пути во все районы города Копейск, а так же до крупных транспортных развязок по следующим направлениям:</em> <br><em>+8 км. до центра г. Копейск</em> <br><em>+ 11 км. до объездной г. Челябинска (обход города) прямой въезд/выезд в сторону г.Курган, г.Екатеринбург, г.Троицк, г.Уфа, Республики Казахстан,</em> <br><em>+ 14 км. до г. Челябинска</em> <br><em> </em> <br><em>Звоните! Будем рады ответит на ваши вопросы! </em> <br>Арт. 96219430