Помещение свободного назначения 1000 м²
1 из 1
этаж
1000,00 м²площадь
есть
отдельный вход
Характеристики
Наличие мебели
нет
Ремонт
требует ремонта
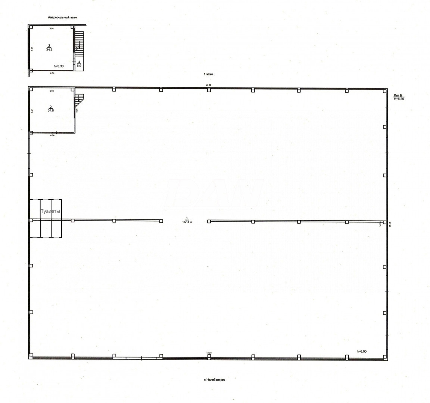
Сдается в аренду охраняемую стоянку для крупнотоннажного автотранспорта площадью до 1 Га <br> Удобная площадка для крупнотоннажного транспорта для разгрузки и парковки. Объект располагается по Адресу г. Челябинск, Челябэнерго, 33, рядом с густонаселенными районами города в близи остановки общественного транспорта. Выше перечисленные преимущества и превосходная локации объекта позволяют разместить разместить: стоянку автотранспорта, склад открытого хранения, логистический центр. <br> <br>Охраняемая Стоянка для крупнотоннажного автотранспорта площадью 2,1 Га (21000 кв.м) <br>Территория: Огороженная/асфальтированная <br>Круглосуточная вневедомственная охрана (полиция) <br>Подъездные пути: асфальтированная дорога <br> <br>Так же дополнительно возможно снять следующие объекты: <br>Характеристики объекта: <br>Производственное здание S=900 кв.м (пролет 18 м длина 48 м) 1 пролет <br>Ворота подъемные секционные с электроприводом 4,2 *4,0 м - 3 шт. <br>Высота потолка: в максимальной точке высота 6 м до ферм <br>Территория: Огороженная/асфальтированная <br>Круглосуточная охрана <br>Подъездные пути: асфальтированная дорога <br>Коммуникации: <br>Водоснабжение - локальное автономное (скважина). Горячая вода. <br>Водоотведение - септик <br>Отопление - газовая котельная с гибкой и экономичной системой тепловентиляторов Вулкан <br>Электрическая мощность объекта 220 В + 380 В мощностью 150 кВт <br> <br>АБК (Бытовое помещение) S=57,2 кв.м <br>Дополнительно подвал 87 кв.м <br>Водоснабжение - локальное автономное (скважина). Горячая вода. <br>Водоотведение - септик <br> <br>Офис S=100 кв.м <br>Ремонт - Евроремонт <br>Сан узел - 1 шт. <br>Теплый пол <br>Входы в здание в количестве 2 шт. <br> <br>Объект расположен в пешей доступности от остановки общественного транспорта ост. Челябэнерго. <br>Транспортная развязка в расположении объекта, обеспечивает всем выдам автомобильного транспорта доступ: <br>+ 5 мин. до Свердловский тракт (прямой въезд/выезд на федеральную трассу М5 в сторону г. Екатеринбург) <br>+ 5 мин. до Новгородский тракт (прямой въезд/выезд на федеральную трассу М5 в сторону г. Уфа) <br>+5 мин до объездной дороги г. Челябинск <br>+20 мин. до Центра <br> <br>Преимущества объекта: <br>+ Оборудован для обслуживания автотранспорта, в том числе крупнотоннажного <br>+ Большая охраняемая стоянка для крупнотоннажного автотранспорта площадью 2,1 Га <br>+ Круглосуточный доступ <br>+ Наличие помещений для персонала, сан.узлов <br>+ Большая площадка для автотранспорта и открытого хранения <br>+ Экономичная и гибкая система отопления от собственной газовой котельной <br>+ Удобные подъездные пути <br>+ Охраняемая территория с собственным постом вневедомственной охраны (полиция) <br>+ Объект подключен ко всем коммуникациям <br>+ Универсальное назначение помещений <br> <br>По всем интересующим вопросам - звоните. <br>Арт. 86820148