Помещение свободного назначения 4439,9 м²
149 000 000 ₽
33 559 ₽ за м²
1 из 4
этажи
4439,90 м²площадь
есть
отдельный вход
Характеристики
Наличие мебели
нет
Ремонт
косметический
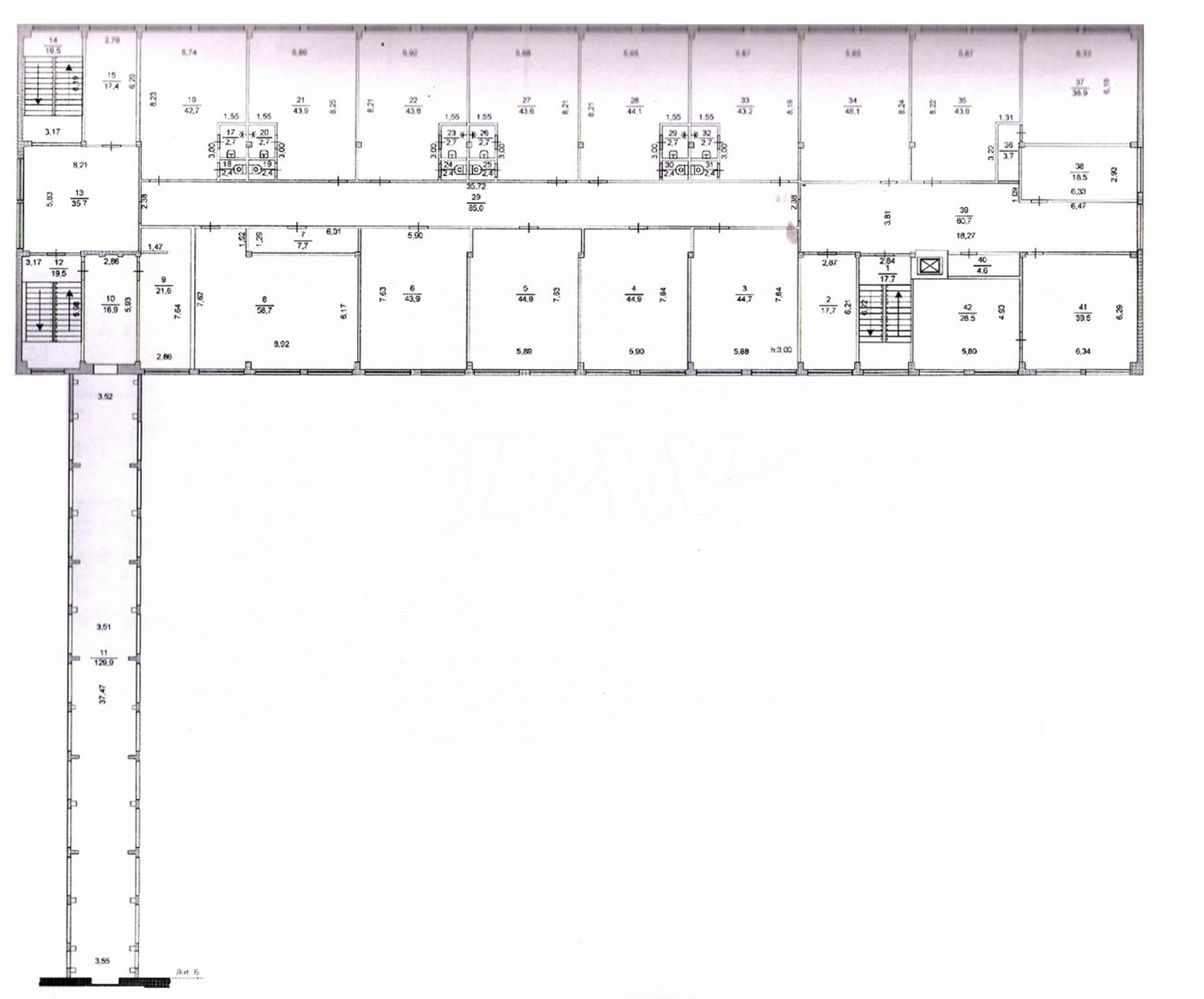
Продаётся отдельно стоящее здание свободного назначения общей площадью 4434,9 кв.м, расположенное на земельном участке площадью 4294 кв.м. Объект по техническим характеристикам подойдет для размещения различных форматов гостиничной сферы, в том числе хостела, для вахтовиков, пансионата, медицинского центра, объекта образовательной сферы, офисов представительства компании, других объектов сферы услуг. Объект на текущий момент используется как готовый бизнес в гостиничной сфере - хостел для рабочего персонала. <br> <br>Пешая доступность (450 м) до Остановки ул. Мясокомбинат (11маршрутов). <br>Транспортная развязка в расположении объекта, обеспечивает всем выдам автомобильного транспорта доступ к подъездным путям: <br>+ 15 мин. автодорога Меридиан (прямой въезд/выезд в сторону Республики Казахстан, г.Троицк, г.Уфа, г.Екатеринбург, г.Курган) <br>+ 20 мин. Обход города Челябинска (прямой въезд/выезд на федеральную трассу М5) <br>+ 20 мин. до Центра <br> <br>Свободная большая парковка возле здания. <br> <br>Технические характеристики объекта: <br> Общая площадь: 4434,9 кв.м <br> Этажность: 4 этажей по 1100 кв.м + на 5 этаже выход на кровлю здания <br> Высота потолков: 3,0 м <br> Вход: три входа <br> Три лестничных марша <br> Зона погрузки-разгрузки: есть <br> Коммуникации: водоснабжение, водоотведение, отопление центральные <br> Пожарная сигнализация: есть <br> Пост охраны: есть <br> Электрическая мощность: 100 кВт <br> Автостоянка: 20 машиномест <br> Благоустройство прилегающей территории: бетонное ограждение, асфальтовые площадки <br> Подъездные пути: асфальтовая дорога <br> <br>Преимущества объекта: <br>+ Универсальное назначение части площадей <br>+ Близость остановки общественного транспорта <br>+ Здание расположено на охраняемой территории <br>+ Собственная парковка <br>+ Отдельные входы в объект <br>+ Близость к объектам инфраструктуры <br>+ Объект имеет оптимальную высоту потолков <br>+ Объект имеет достаточное остекление для естественного освещения. <br> <br>Звоните! Рады ответить на интересующие вопросы. <br>Арт. 133224145