Склад 2650 м²
1 из 1
этаж
2650,00 м²площадь
есть
отдельный вход
Характеристики
Наличие мебели
нет
Ремонт
косметический
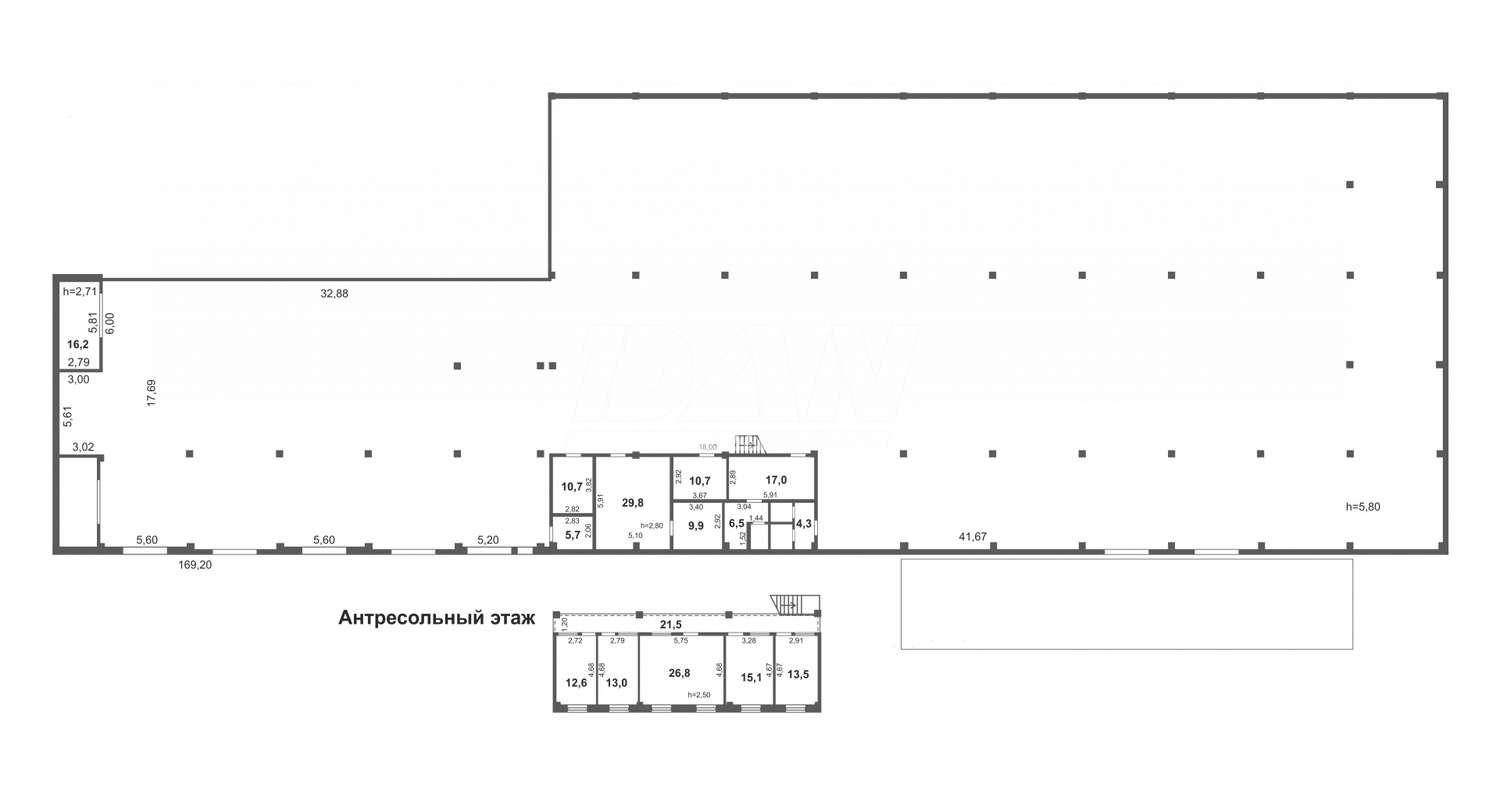
Сдаётся складская площадь 2650 кв.м., подходящая для размещения распределительного центра крупной торговой или логистической компании. <br> <br>Технический характеристики: <br>Расположение: Складской комплекс 25 000 кв.м. <br>Площадь склада: 2272 кв.м. <br>Офисная площадь: 378 кв.м <br>Планировочное решение: Свободная планировка (Отсутствие стен и перегородок) <br>Шаг колонн: 6 м. и 9 м. <br>Высота потолка: 7 м. <br>Рабочая высота складирования: до 5 м. <br>Наличие доковых ворот размером 3*3 м., - 7 шт. <br>Высота пандуса с навесом: 0,8 м. (2 ворот) <br>Температурный режим: +5,+20С (газовая котельная) <br>Благоустройство: Большая асфальтированная маневровая площадка для грузового транспорта. <br> <br><u>Безопасность:</u><ul><li data-list="bullet"><span class="ql-ui" contenteditable="false"></span>Охранная и пожарная сигнализации,</li><li data-list="bullet"><span class="ql-ui" contenteditable="false"></span>Охраняемый периметр,</li><li data-list="bullet"><span class="ql-ui" contenteditable="false"></span>Круглосуточный пост КПП,</li><li data-list="bullet"><span class="ql-ui" contenteditable="false"></span>Охраняемом стоянка большегрузного транспорта,</li><li data-list="bullet"><span class="ql-ui" contenteditable="false"></span>Парковка: свободная наземная парковка на 200 машиномест.</li></ul> <br> <br><u>Коммерческие условия аренды:</u><ul><li data-list="bullet"><span class="ql-ui" contenteditable="false"></span>Долгосрочный Договор аренды.</li><li data-list="bullet"><span class="ql-ui" contenteditable="false"></span>Обеспечительный платеж в размере арендной платы за один месяц. </li><li data-list="bullet"><span class="ql-ui" contenteditable="false"></span>Арендная ставка на складские помещения – 350 руб./кв.м. с учетом НДС.</li><li data-list="bullet"><span class="ql-ui" contenteditable="false"></span>Коммунальные расходы (оплата электроэнергии, водопотребления и теплоснабжения по приборам учета) оплачиваются дополнительно.</li></ul> <br> <br><u>Подъездные пути:</u> <br><em>2,5 км. от крупного транспортного узла ул. Свердловский проспект. Прямой, беспрепятственный въезд/выезд большегрузного транспорта в город и в сторону г. Екатеринбурга, г. Кургана, г. Уфа, г. Троицк.</em> <br> <br><u>Транспортная доступность:</u> <br><em>Остановка общественного транспорта расположена в 350 м. пешей доступности. Обслуживает остановочный комплекс маршрутное такси №300. На расстоянии 5-митутной пешей доступности (2,5 км.) расположен остановочный комплекс ул. Черкасская, который обслуживают 17 маршрутов общественного транспорта во все районы города</em> <br> <br><em><u>Звоните! Будем рады ответить на ваши вопросы!</u></em> <br>Арт. 133583888