Склад 295 м²
1 из 1
этаж
295,00 м²площадь
есть
отдельный вход
Характеристики
Наличие мебели
нет
Ремонт
требует ремонта
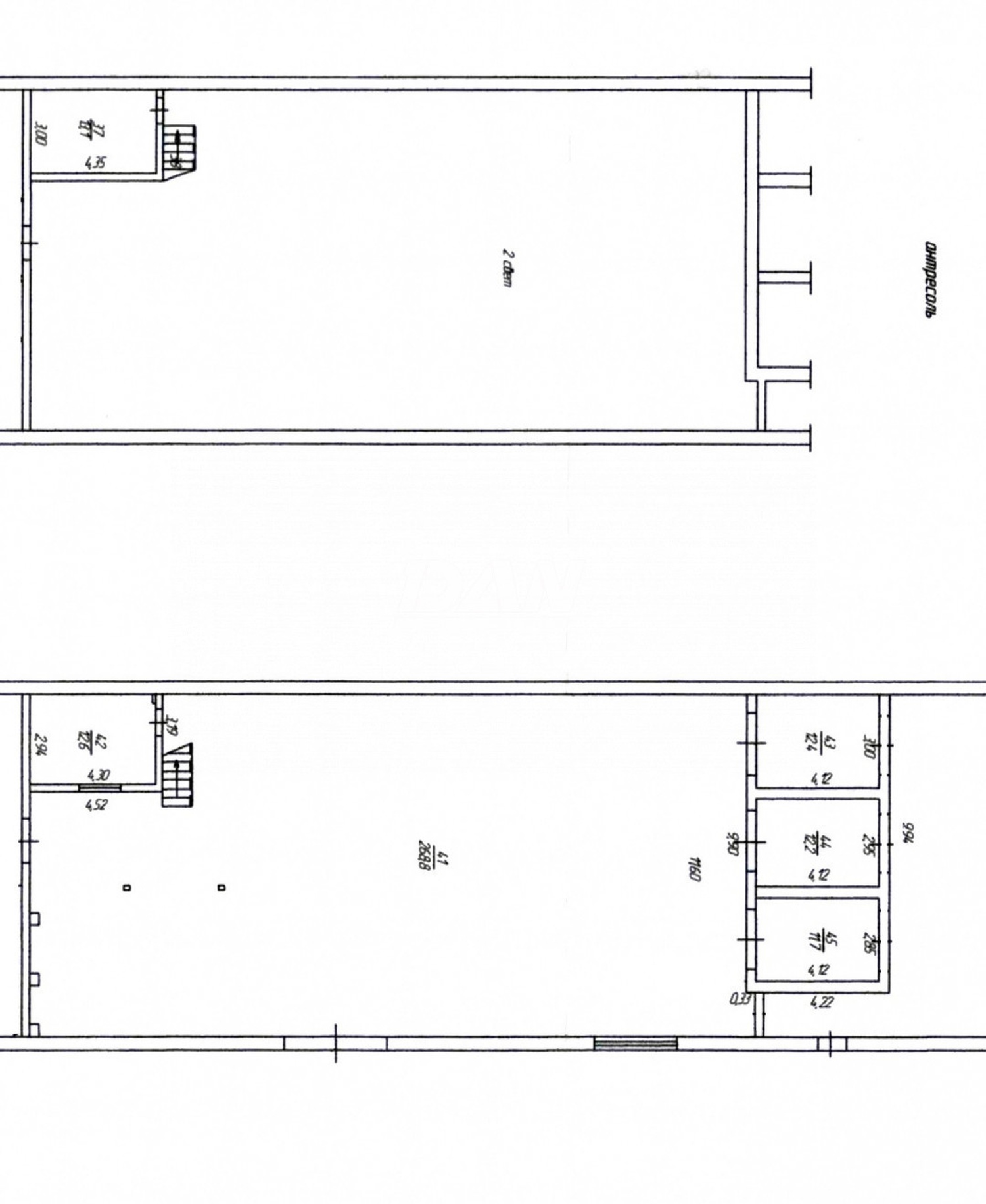
Сдается в аренду производственно-складские помещения общей площадью 295 кв.м., и помещениями для персонала. Площадь позволяет разместить склад продукции, низко энергоёмкое производство, сборочный цех. <br> <br>Объект расположен в 5 минутной пешей доступности от остановки общественного транспорта (ЧМК), которую обслуживают 15 маршрутов общественного транспорта во все районы города. <br>Транспортная развязка в расположении объекта, обеспечивает всем видам автомобильного транспорта доступ: <br>+15 мин. до ул. Свердловский тракт (прямой въезд/выезд на федеральную трассу М5) <br>+20 мин. до автодороги Меридиан (прямой въезд/выезд в сторону Республики Казахстан, г.Троицк, г.Уфа, г.Екатеринбург, г.Курган) <br>+25 мин. до Центра <br> <br>Характеристики объекта: <br>Склад площадью 295 м2 <br>Площадь основного цеха 12*24м <br>Высота потолка 5,4м <br>Ворота секционные 3,4*3,5 м - 1 шт <br>Беспылевой пол <br>Помещения для персонала (туалет, комната приема пищи) <br>Электрическая мощность объекта 220 В + 380 В мощностью до 50 кВт <br> <br>Территория: Огороженная/асфальтированная <br>Круглосуточная охрана <br>Подъездные пути: асфальтированная дорога <br> <br>Дополнительная аренда: <br>Холодные боксы (гаражи) 4 шт. общей площадью 60 кв.м <br>АБК (офисы) <br>S= от 45 до 110 кв.м <br>Этажей 2 <br>Высота потолков 3м <br>Коммуникации: <br>Отопление централизованное <br>Водоснабжение/водоотведение централизованное <br>Ремонт: Качественная офисная отделка <br>Парковка охраняемая <br> <br>По всем интересующим вопросам - звоните. <br>Арт. 126983532