Склад 1867 м²
1 из 1
этаж
1867,00 м²площадь
есть
отдельный вход
Характеристики
Наличие мебели
нет
Ремонт
требует ремонта
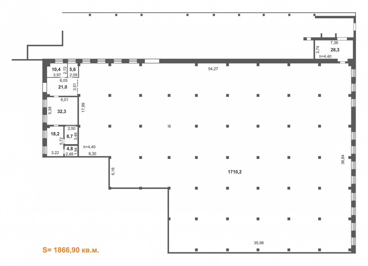
Сдается в аренду отличное теплое производственно-складское помещение с дебаркадером и помещением для персонала, офисом общей площадью 1867 кв. м. Площадь объекта позволяет разместить склад готовой продукции, различные виды производства, распределительный центр. <br> <br>Транспортная развязка в расположении объекта, обеспечивает всем выдам автомобильного транспорта доступ: <br>+ 1 мин. до ул. Копейское шоссе (прямой въезд/выезд в г.Копейск <br>+ 15 мин. автодорога Меридиан (прямой въезд/выезд в сторону Республики Казахстан, г.Троицк, г.Уфа, г.Екатеринбург, г.Курган) <br>+ 20 мин. Обход города Челябинска (прямой въезд/выезд на федеральную трассу М5) <br>+ 20 мин. до Центра Челябинска <br> <br> <br>Характеристики объекта: <br>Электрическая мощность объекта 220 В + 380 В мощностью 60 кВт <br>Склад с АБК <br>Общая площадь 1867 кв. м:<ul><li data-list="bullet"><span class="ql-ui" contenteditable="false"></span>1 752,7 кв.м складское </li> <br><li data-list="bullet"><span class="ql-ui" contenteditable="false"></span> 82,5 кв.м помещения для персонала </li> <br><li data-list="bullet"><span class="ql-ui" contenteditable="false"></span>31,7 кв.м офисное</li></ul> <br>Ворота распашные 3,0 *3,0 м - 1 шт. <br>Отопление - централизованное <br>Температурный режим +20С <br>Беспылевые полы <br>Высота потолка: от 4,4 м. <br>3 сан. узела. <br>Парковка на 10 машиномест <br>Доступ 24/7 <br>Охранная сигнализация <br>Подъездные пути: асфальтированная дорога <br> <br>Коммунальные расходы оплачиваются отдельно. <br> <br>По всем интересующим вопросам - звоните <br>Арт. 18749832